RE/MAX / Brynjar Ingólfsson kynnir: Falleg hornlóð á frábærum stað í nýrri götu sem mun bera nafnið Fagrahvarf. Lóðin er á horni Breiðahvarfs og Funahvarfs.
- Mikill trjágróður - Stærð lóðar 900 m² - Heimild til að byggja 220 m² - Einstakt tækifæri til að byggja nýtt hús í grónu hverfi
Heimild er fyrir að byggja einbýlishús á tveimur hæðum með innbyggðum bílskúr og þremur bílastæðum á lóð. Hámarksflatarmál er 220 m 2 . Hámarkshæð og vegghæð er 7m og þakform er frjálst.
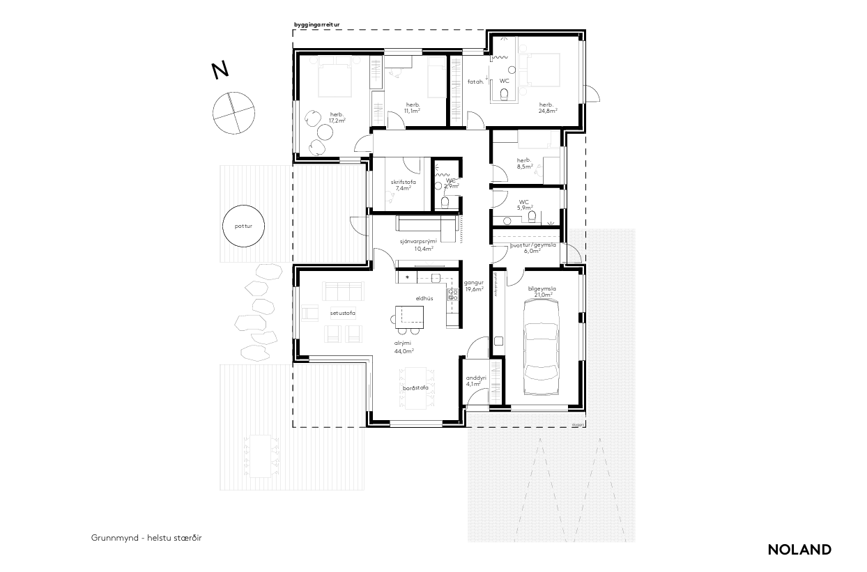
Búið er að teikna einbýlishús á einni hæð af Noland arkitektum. Gatnagerðagjöld ekki innifalin.
Allar frekari upplýsingar um eignina veitir: Brynjar Ingólfsson MSc, löggiltur fasteignasali í síma 666 8 999 / brynjar@remax.is
Vegna mikillar eftirspurnar vantar okkur allar tegundir eigna á skrá. Hafið samband og ég mun verðmeta eign þína þér að kostnaðarlausu.
Byggt 2026
Sameiginlegur
Fasteignanúmer
2066552
Húsgerð
Jörð/Lóð
Númer hæðar
0
Lóðarréttindi
Leigulóð
Inngangur
Sameiginlegur
Kvöð / kvaðir
Lóðin er skráð undir Breiðahvarfi 2 sem stendur en búið er að samþykkja skiptingu lóðana og er verið að útbúa númer á hverja lóð fyrir sig. Hægt er að fara í kaupsamning um leið og númerið er útgefið.
RE/MAX / Brynjar Ingólfsson kynnir: Falleg hornlóð á frábærum stað í nýrri götu sem mun bera nafnið Fagrahvarf. Lóðin er á horni Breiðahvarfs og Funahvarfs.
- Mikill trjágróður - Stærð lóðar 900 m² - Heimild til að byggja 220 m² - Einstakt tækifæri til að byggja nýtt hús í grónu hverfi
Heimild er fyrir að byggja einbýlishús á tveimur hæðum með innbyggðum bílskúr og þremur bílastæðum á lóð. Hámarksflatarmál er 220 m 2 . Hámarkshæð og vegghæð er 7m og þakform er frjálst.
Búið er að teikna einbýlishús á einni hæð af Noland arkitektum. Gatnagerðagjöld ekki innifalin.
Allar frekari upplýsingar um eignina veitir: Brynjar Ingólfsson MSc, löggiltur fasteignasali í síma 666 8 999 / brynjar@remax.is
Vegna mikillar eftirspurnar vantar okkur allar tegundir eigna á skrá. Hafið samband og ég mun verðmeta eign þína þér að kostnaðarlausu.