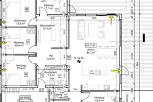
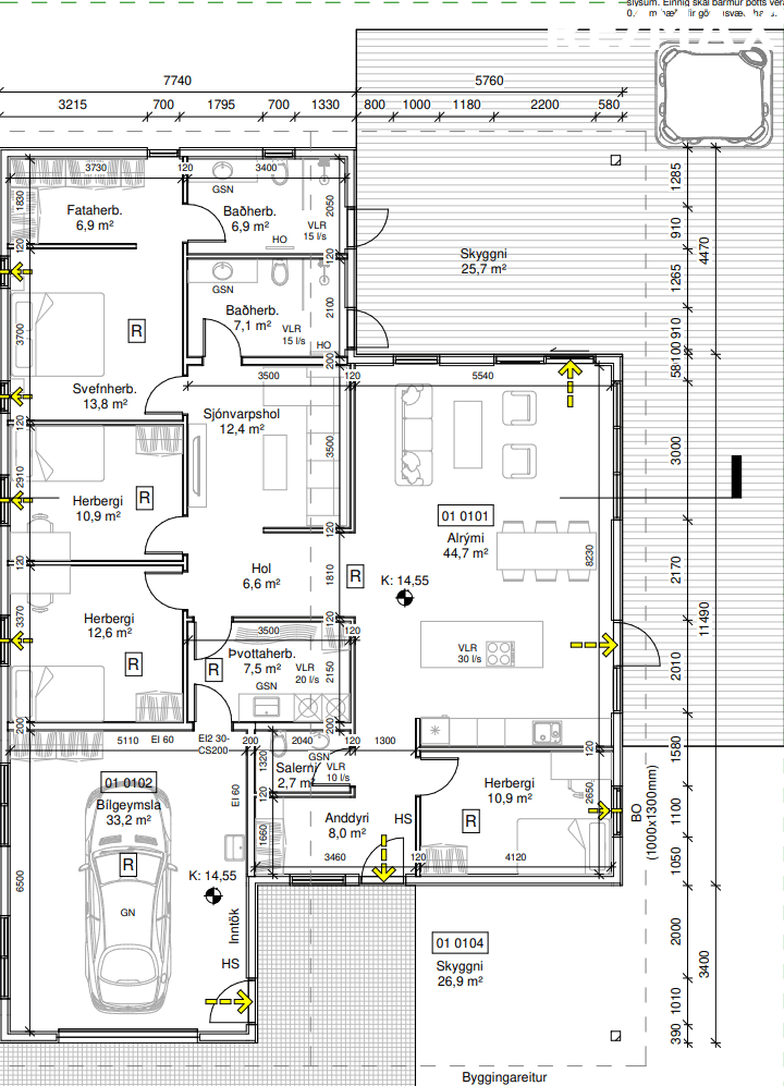
Pétur Ásgeirsson löggiltur fasteignasali hjá RE/MAX fasteignasölu kynnir : Fallegt 6 herbergja einbýlishús með innbyggðum bílskúr. Samkvæmt fasteignaskrá er birt stærð 207 fm. og þar af er íbúðarhluti 169,2 fm. og bílskúr 37,8 fm. Húsið er vel staðsett við Bárugötu 21 í nýju hverfi í Þorlákshöfn. Húsið er er klætt að utan með álklæðningu og timbur í þakkanti .
Eignin skiptist í forstofu, í alrými er eldhús og stofa / borðstofa, fjögur svefnherbergi, fataherbergi, 2,5 baðherbergi, þvottahús og bílskúr.
Húsið verður afhent á byggingarstigi 2 tilbúið að utan, fokheld að innan með grófjafnaðri lóð og skilað samkvæmt skilalýsingu. Áætlað að húsið verði tilbúið á B2 í apríl 2026 Hægt er að fá húsið afhent á byggingarstigi B3 sem er tilbúið til innréttinga. Hægt að fá húsið full klárað á B4
-Stór svefnherbergi. -Golf hiti. - 2 baðherbergi. -4 svefnherbergi. -Stórt alrými. -Mjög stór bílskúr. -Innangengt inn í bílskúr. -Stór sér afnotaflötur. -Hægt að setja heitan pott. -Stutt í alla þjónustu.
Nýr leikskóli var opnaður í Ágúst 2025 og er staðsettur í næstu götu
Nánari upplýsingar gefur Pétur Ásgeirsson löggiltur fasteignasali í síma 893-6513 / petur@remax.is
Gjöld sem kaupandi þarf að standa straum af vegna kaupanna: 1. Stimpilgjald af kaupsamningi - 0,8%(einstaklingar) 1.6% (lögaðilar) af heildarfasteignamati. 2. Þinglýsingargjald af kaupsamningi, veðskuldabréfi, mögulegu veðleyfi o.fl. - kr. 3.800 af hverju skjali. 3. Lántökugjald lánastofnunar - almennt 45-75 þús.kr. Nánari upplýsingar á heimasíðu lánastofnana. 4. Umsýslugjald til fasteignasölu kr. 69.900 mvsk.
Sameiginlegur
Fasteignanúmer
2532494
Húsgerð
Jörð/Lóð
Lóðarréttindi
Leigulóð
Inngangur
Sameiginlegur
Matsstig
0 - Úthlutað
Pétur Ásgeirsson löggiltur fasteignasali hjá RE/MAX fasteignasölu kynnir : Fallegt 6 herbergja einbýlishús með innbyggðum bílskúr. Samkvæmt fasteignaskrá er birt stærð 207 fm. og þar af er íbúðarhluti 169,2 fm. og bílskúr 37,8 fm. Húsið er vel staðsett við Bárugötu 21 í nýju hverfi í Þorlákshöfn. Húsið er er klætt að utan með álklæðningu og timbur í þakkanti .
Eignin skiptist í forstofu, í alrými er eldhús og stofa / borðstofa, fjögur svefnherbergi, fataherbergi, 2,5 baðherbergi, þvottahús og bílskúr.
Húsið verður afhent á byggingarstigi 2 tilbúið að utan, fokheld að innan með grófjafnaðri lóð og skilað samkvæmt skilalýsingu. Áætlað að húsið verði tilbúið á B2 í apríl 2026 Hægt er að fá húsið afhent á byggingarstigi B3 sem er tilbúið til innréttinga. Hægt að fá húsið full klárað á B4
-Stór svefnherbergi. -Golf hiti. - 2 baðherbergi. -4 svefnherbergi. -Stórt alrými. -Mjög stór bílskúr. -Innangengt inn í bílskúr. -Stór sér afnotaflötur. -Hægt að setja heitan pott. -Stutt í alla þjónustu.
Nýr leikskóli var opnaður í Ágúst 2025 og er staðsettur í næstu götu
Nánari upplýsingar gefur Pétur Ásgeirsson löggiltur fasteignasali í síma 893-6513 / petur@remax.is
Gjöld sem kaupandi þarf að standa straum af vegna kaupanna: 1. Stimpilgjald af kaupsamningi - 0,8%(einstaklingar) 1.6% (lögaðilar) af heildarfasteignamati. 2. Þinglýsingargjald af kaupsamningi, veðskuldabréfi, mögulegu veðleyfi o.fl. - kr. 3.800 af hverju skjali. 3. Lántökugjald lánastofnunar - almennt 45-75 þús.kr. Nánari upplýsingar á heimasíðu lánastofnana. 4. Umsýslugjald til fasteignasölu kr. 69.900 mvsk.