Pétur Ásgeirsson löggiltur fasteignasali hjá RE/MAX fasteignasölu kynnir : Einkar fallegt parhús með bílskúr á einni hæð með sérafnotareit við Gyðugötu 13 í nýju hverfi í Þorlákshöfn. Húsið verður afhent tilbúið að utan, fokheld að innan með grófjafnaðri lóð og skilað samkvæmt skilalýsingu, steypt ruslatunnuskýli á framaverðu. Inntök eru komin inn í hús og húsið er tilbúið til afhendingar við kaupsamning
Hægt að fá húsið skilað á B3 skv skilalýsingu á 73,9 m. Skilalýsing. fyrir B3. Allir veggir komnir. Full málaðir. Kaupandi getur haft áhrif á litaval. Hvítur loftadúkur. Allstaðar nema á baði og þvottahúsi Innbyggð led lýsing komin . Allstaðar nema á baði og þvottahúsi. Hvítir rofar og tenglar komnir Rafmagnstafla fullfrágengin Hita og neysluvatns grind fulltengd. Forhitari á neysluvatni. Tengikranar tengdir i veggjum. WC kassi kominn upp og klæddur. Thermostat komin á veggi Tafla full frágengin. Útilýsing tengd skv teikningu. Innbyggt Loftræstikerfi í loftum. Túða á gafli húss.
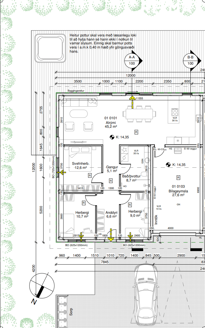
Eignin er 142 fm þar af er bílskúr 31,2 fm samkvæmt Þjóðskrá Íslands. Íbúðin samanstendur af þremur svefnherbergjum, forstofu, stofu, borðstofu, eldhúsi, þvottahúsi og baðherbergi. Húsið er byggt úr timbri á steyptri plötu og klætt að utan með lituðu áli. Þak er klætt með aluzink. Frábær staðsetning í nýju hverfi Þorlákshafnar þar sem stutt er í alla helstu þjónustu, skóla og leikskóla, íþróttaaðstöðu og falleg útivistarsvæði.
-Nýr leikskóli 150 m frá húsinu og er upplýstur göngustígur frá húsinu að skólanum. -Stór svefnherbergi. -Stórt alrými. -Innangengt inn í bílskúr. -Sér afnotaflötur sem snýr í suður. -Hægt að setja heitan pott. -Extra lofthæð 2.8 m
Nánari upplýsingar gefur Pétur Ásgeirsson löggiltur fasteignasali í síma 893-6513 / petur@remax.is
Gjöld sem kaupandi þarf að standa straum af vegna kaupanna: 1. Stimpilgjald af kaupsamningi - 0,8%(einstaklingar) 1.6% (lögaðilar) af heildarfasteignamati. 2. Þinglýsingargjald af kaupsamningi, veðskuldabréfi, mögulegu veðleyfi o.fl. - kr. 2.700 af hverju skjali. 3. Lántökugjald lánastofnunar - almennt 45-75 þús.kr. Nánari upplýsingar á heimasíðu lánastofnana. 4. Umsýslugjald til fasteignasölu kr. 69.900 mvsk.
Pétur Ásgeirsson löggiltur fasteignasali hjá RE/MAX fasteignasölu kynnir : Einkar fallegt parhús með bílskúr á einni hæð með sérafnotareit við Gyðugötu 13 í nýju hverfi í Þorlákshöfn. Húsið verður afhent tilbúið að utan, fokheld að innan með grófjafnaðri lóð og skilað samkvæmt skilalýsingu, steypt ruslatunnuskýli á framaverðu. Inntök eru komin inn í hús og húsið er tilbúið til afhendingar við kaupsamning
Hægt að fá húsið skilað á B3 skv skilalýsingu á 73,9 m. Skilalýsing. fyrir B3. Allir veggir komnir. Full málaðir. Kaupandi getur haft áhrif á litaval. Hvítur loftadúkur. Allstaðar nema á baði og þvottahúsi Innbyggð led lýsing komin . Allstaðar nema á baði og þvottahúsi. Hvítir rofar og tenglar komnir Rafmagnstafla fullfrágengin Hita og neysluvatns grind fulltengd. Forhitari á neysluvatni. Tengikranar tengdir i veggjum. WC kassi kominn upp og klæddur. Thermostat komin á veggi Tafla full frágengin. Útilýsing tengd skv teikningu. Innbyggt Loftræstikerfi í loftum. Túða á gafli húss.
Eignin er 142 fm þar af er bílskúr 31,2 fm samkvæmt Þjóðskrá Íslands. Íbúðin samanstendur af þremur svefnherbergjum, forstofu, stofu, borðstofu, eldhúsi, þvottahúsi og baðherbergi. Húsið er byggt úr timbri á steyptri plötu og klætt að utan með lituðu áli. Þak er klætt með aluzink. Frábær staðsetning í nýju hverfi Þorlákshafnar þar sem stutt er í alla helstu þjónustu, skóla og leikskóla, íþróttaaðstöðu og falleg útivistarsvæði.
-Nýr leikskóli 150 m frá húsinu og er upplýstur göngustígur frá húsinu að skólanum. -Stór svefnherbergi. -Stórt alrými. -Innangengt inn í bílskúr. -Sér afnotaflötur sem snýr í suður. -Hægt að setja heitan pott. -Extra lofthæð 2.8 m
Nánari upplýsingar gefur Pétur Ásgeirsson löggiltur fasteignasali í síma 893-6513 / petur@remax.is
Gjöld sem kaupandi þarf að standa straum af vegna kaupanna: 1. Stimpilgjald af kaupsamningi - 0,8%(einstaklingar) 1.6% (lögaðilar) af heildarfasteignamati. 2. Þinglýsingargjald af kaupsamningi, veðskuldabréfi, mögulegu veðleyfi o.fl. - kr. 2.700 af hverju skjali. 3. Lántökugjald lánastofnunar - almennt 45-75 þús.kr. Nánari upplýsingar á heimasíðu lánastofnana. 4. Umsýslugjald til fasteignasölu kr. 69.900 mvsk.