RE/MAX Ísland logo
Opið hús:22. maí kl 17:30-18:00
Skráð 12. des. 2025
Söluyfirlit

Grásteinsmýri 1 - íbúð 201

Nýbygging • FjölbýlishúsHöfuðborgarsvæðið/Garðabær-225
118.7 m2
4 Herb.
3 Svefnh.
1 Baðherb.
Verð
105.400.000 kr.
Fermetraverð
887.953 kr./m2
Fasteignamat
37.150.000 kr.
RE/MAX
Mynd af Bjarný Björg Arnórsdóttir
Bjarný Björg Arnórsdóttir
Löggiltur fasteignasali
Garður
Sameiginlegur
Fasteignanúmer
2534680
Húsgerð
Fjölbýlishús
Byggingarefni
Steypt
Númer hæðar
2
Númer íbúðar
1
Vatnslagnir
Nýtt
Raflagnir
Nýtt
Frárennslislagnir
Nýtt
Gluggar / Gler
Nýtt
Þak
Nýtt
Lóðarréttindi
Leigulóð
Upphitun
Hitaveita
Inngangur
Sameiginlegur
Matsstig
4 - Fokheld bygging
Sýnum daglega!!!
RE/MAX, Garðar Hólm lgf., Guðlaug Jóna lgf. og Bjarný Björg lgf kynna: Nýjan íbúðaklasa á Álftanesi, 225 Garðabæ, við Grásteinsmýri 1-6. Byggingaraðili Öxar ehf. 

Uppbygging á 102 íbúðum í þremur lágreistum íbúðarkjörnum ásamt bílastæðahúsi undir einum kjarnanum.  Í heidina eru 153 bílastæði, 30 í bílageymslu og 123 á lóð.  Hönnun svæðisins einkennist af því að birta nái í allar íbúðir og andi vel um allt svæðið.

Kaupendur geta nýtt sér nýjan sjóð Öxar 20 sem styður kaupendur með því að fjárfesta með kaupanda allt að 20% af kaupverði.  Kynntu þér málið. 

Vel skipulagðar og rúmgóðar tveggja til fimm herbergja íbúðir með aukinni lofthæð. Með öllum íbúðum í húsunum fylgir stæði í bílageymslu, með sumum íbúðum fylgir svo auk þess annað sér merkt stæði utandyra. Allar íbúðir eru með hefðbundnar svalir eða verönd þar sem á við. Flestar íbúðir eru með sér þvottahús. 

Sjá má skilalýsingu, verðlista og nánari upplýsingar inn á heimasíðu verkefnisins: grasteinsmyri.is

Nánari upplýsingar veita:
Guðlaug Jóna lgf. í síma 661-2363 eða gulla@remax.is
Garðar Hólm lgf. í síma 899-8811 eða gardar@remax.is
Bjarný Björg lgf. í síma 694-2526 eða bjarny@remax.is


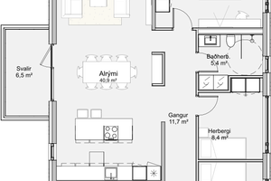
Íbúð 201 er glæsileg 4ra herbergja íbúð á 2. hæð með sérinngangi og stæði í bílakjallara. Samkvæmt Þjóðskrá Íslands er eignin 118,7 fm, þar af er geymsla í kjallara 9,2 fm. 
 
Einstaklega vönduð og falleg 4ra herbergja íbúð, merkt: 201 (Hæð 2). Íbúðin er fullbúin án gólfefna að undanskildum votrýmum,  sem verða flísalögð. Sérstæði í bílageymslu fylgir með.  Húsið er úr staðsteypt, einangrað að utan og klætt með áli og timbri.  Allar innréttingar eru frá Axis og eldhústæki frá AEG.

Íbúð: 0201
Hæð: 2
Tegund: 4ra herbergja 
Stærð: 118,7 m² 
Geymsla: 9,2 m² 
Stæði í bílageymslu: Merkt B04

Nánari lýsing:
Forstofa: Með góðum fataskápum.
Eldhús: Falleg innrétting frá Axis með 80 cm helluborði með inngbyggðum gufugleypi, bakarofni, innbyggðum ísskáp og uppþvottavél. Eyja er í eldhúsi og er eldavélin þar.
Stofa/borðstofa: Í samliggjandi rými með eldhúsi. Opið og bjart rými. Útgengt út á 22,5 fm sérafnotarétt.
Hjónaherbergi: Rúmgott með góðum fataskápum.
Herbergi II og III: Rúmgóð með góðum fataskápum. 
Baðherbergi: Flísar á gólfi og að hluta til veggjum, upphengt salerni, sturta með glerskilrúmi, innrétting undir og við handlaug, handklæðaofn.
Þvottahús: Innrétting fyrir þvottavél og þurrkara með skúffum undir og skápum yfir vélum.  Flísar á gólfum.
Geymsla: Er í sameign í kjallara og er 9,2 fm.
Sameign: Í sameign í kjallara er hjóla- og vagnageymsla.
Bílastæði: Bílastæði í lokuðum bílakjallara merk B06.

Helstu eiginleikar:
Gólfsíðir gluggar við svalir.
Sérmerkt stæði í bílageymslu.
Mikið skápapláss.
Innréttingar frá Axis.
Aukin lofthæð.
Húsið:
Grásteinsmýri 1-6 er glæsilegt og vandað fjölbýlishús byggt af Öxar ehf. 
Húsið er á 3 hæðum auk bílakjallara, alls 102 íbúðir. Húsið er gert staðsteypt og klætt að utan. Gluggar eru álklæddir viðargluggar með tvöföldu gleri. 

*Myndirnar sem birtast á auglýsingu íbúðarinnar eru ekki endilega myndir af íbúðinni sjálfri heldur einungis til þess að gefa sýn á útlit eignanna þegar þær eru tilbúnar.
 
Kaupendur hafa verið upplýstir um að lóðin verður byggingasvæði í einhvern tíma eftir að eignir kunna að vera afhentar og að lokaúttekt kannað tefjast þangað til öll lóðin og mannvirki innan lóðar eru fullkláruð. Röskun getur orðið á stæðum í bílgeymslu og gætu kaupendur þurft að nota annað stæði en það sem þinglýst er á þeirra eign á meðan enn er unnið að því að klára heildareign og lóð. Seljandi mun ábyrgjast lokaúttekt á eigninni en afsal kann að fara fram áður en lokaúttekt á eigninni/heildareigninni fæst.

Nánari upplýsingar veita:
Garðar Hólm löggiltur fasteignasali í síma 899-8811 / gardar@remax.is
Guðlaug Jóna löggiltur fasteignasali í síma 661-2363 / gulla@remax.is
Bjarný Björg löggiltur fasteignasali í síma 694-2526 / bjarny@remax.is


Gjöld sem kaupandi þarf að standa straum af vegna kaupanna:
1.  Stimpilgjald af kaupsamningi 0,8%, ( 0,4% ef um fyrstu kaup er að ræða ) og 1.6% (ef um lögaðila er að ræða) af heildar fasteignamati.
2.  Þinglýsingargjald af kaupsamningi, veðskuldabréfi, mögulegu veðleyfi o.fl. - kr. 2.700 af hverju skjali.
3.  Lántökugjald lánastofnunar -  Nánari upplýsingar á heimasíðum lánastofnana.
4. Umsýslugjald til fasteignasölu kr. 69.900.-
 
 
Fasteignanúmer
2534680
Byggingarefni
Steypt
Númer hæðar
B0
Númer eignar
4
Húsmat
0 kr.
Lóðarmat
0 kr.
Fasteignamat samtals
0 kr.
Brunabótamat
0 kr.
Matsstig
4 - Fokheld bygging

Sambærilegar eignir

Opna eign
Image
Opna eign
Lambamýri 2
225 Garðabær
122.2 m2
Fjölbýlishús með lyftu
423
867 þ.kr./m2
105.900.000 kr.
Opna eign
3D Sýn
Image
Opna eign
Lambamýri 1
225 Garðabær
114 m2
Fjölbýlishús með lyftu
312
876 þ.kr./m2
99.900.000 kr.
Opna eign
Image
Opna eign
Grásteinsmýri 1 íbúð 103
225 Garðabær
126.4 m2
Fjölbýlishús
312
838 þ.kr./m2
105.900.000 kr.
Opna eign
Image
Opna eign
Grásteinsmýri 1 - íbúð 205
225 Garðabær
122 m2
Fjölbýlishús
413
901 þ.kr./m2
109.900.000 kr.
RE/MAX Ísland logo
Við vinnum fyrir þig
Hafðu samband
skrifstofa@remax.isS: 4777777
Skeifunni 17
kt. 480506-0810
Hlekkir
Samfélagsmiðlar
© Copyright 2026 - RE/MAX Ísland
Knúið af
Fasteignaleitin