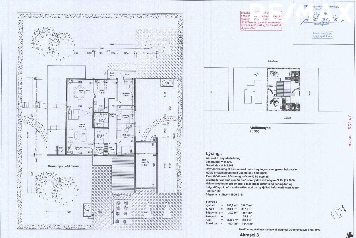
Þorsteinn Ólafs löggiltur fasteignasali og RE/MAX kynna í einkasölu fallega efri hæð, íbúð 01-01 við Akrasel 8 í Reykjavík. Heildarfasteignin er tvílyft steinsteypt íbúðarhús með 2 íbúðum. Þak er úr timbri með báruðum málmplötum. Tvær samþykktar íbúðir eru í húsinu, ein á neðri hæð og ein á efri hæð. Bílgeymsla er steinsteypt og tilheyrir íbúðinni á efri hæð. Lóð hússins er 945 fm leigulóð til 75 ára frá 1. október 1973 og er í óskiptri sameign. 4 bílastæði eru á lóðinni og eru tvö þeirra fyrir framan bílskúrinn að austanverðu og tilheyra þau íbúð efri hæðar.
Íbúðin á efri hæð hússins er 143,4 fm íbúð og skiptist í: 4,1 fm flísalagt anddyri með skápum. Frá anddyri er aðgengi í 7 fm geymslu og þvottaherbergi og þaðan er aðgengi út á timburverönd á lóðinni. 6,2 fm gangur með aðgengi í stofu til vinstri og með aðgengi í herbergi til hægri. Stofan er 27,9 fm og borðstofan er 14,7 fm. Frá borðstofu er aðgengi í rúmt eldhúsrými, 16,8 fm með innréttingu og eldhúsborði. Svefnherbergin eru þrjú, tvö stór, rúmlega 13 fm og eitt minna, 6 fm. Innbyggður skápur er í hjónaherbergi. Nýlegt parket er flæðandi á gólfum nema í herbergjum þar sem er korkur eða dúkur á gólfum. Baðherbergi er flísalagt með upphengdu salerni, sturtu, vaski með innréttingu og hillum. Þá fylgja íbúðinni 6 fm svalir og um 29 fm bílskúr. Einnig er í lóðinni skúr með útisvæði. Þá er á lóðinni sólpallur við hlið bílskúrs með 180 cm háum skjólvegg þar sem hægt er að hafa húsgögn, grill og tilheyrandi. Staðsetning er góð þar sem stutt er í ýmsa verslun s.s. Mjóddina og Smáralind. Skólar og íþróttasvæði ÍR er einnig í næsta nágreinni. Fyrirhugað fasteignamat 2026 er 104.050.000. Nánari upplýsingar veitir Þorsteinn Ólafs lögg. fasteignasali í síma 842-2212, to@remax.is.
Um skoðunar- og aðgæsluskyldu: Í lögum um fasteignakaup nr. 40/2002 er kveðið á um ríka skoðunarskyldu kaupenda á fasteignum. RE/MAX bendir væntanlegum kaupendum á að kynna sér vel ástand fasteigna við skoðun og fyrir tilboðsgerð og ef þurfa þykir að leita til sérfræðinga um nánari ástandsskoðun. Forsendur söluyfirlits: Söluyfirlit er samið af löggiltum fasteignasala í samræmi við ákvæði laga nr. 70/2015. Þær upplýsingar sem fram koma í söluyfirliti þessu eru sóttar í opinberar skrár, til seljanda sjálfs og eftir atvikum til húsfélags. Seljandi veitir upplýsingar um eign í samræmi við upplýsingaskyldu laga um fasteignakaup nr. 40/2002. Fasteignasali sannreynir að þær upplýsingar séu réttar með sjónskoðun á eigninni. Fasteignasali getur ekki fullyrt um ástand og eiginleika þeirra hluta fasteigna sem ekki eru aðgengilegir og sjást ekki berum augum, t.d. lagnir, dren, skólp og þak. Gjöld sem kaupandi þarf að standa straum af vegna kaupanna: 1. Stimpilgjald af kaupsamningi - 0,8%(einstaklingar) 1.6% (lögaðilar) af heildarfasteignamati. 2. Þinglýsingargjald af kaupsamningi, veðskuldabréfi, mögulegu veðleyfi o.fl. - kr. 2.700 af hverju skjali. 3. Lántökugjald lánastofnunar - almennt 45-75 þús.kr. Nánari upplýsingar á heimasíðu lánastofnana. 4. Umsýslugjald til fasteignasölu kr. 69.900 mvsk.
Vegna mikillar eftirspurnar vantar okkur allar tegundir eigna á skrá. Vinsamlega hafið samband við Þorstein Ólafs löggiltan fasteignasala í síma 842-2212 eða með pósti á to@remax.is.
Engar. Frá eiganda: "Ekkert húsfélag er til staðar, en það eina sem er sameiginlegt er hitaveitan. Ástand vatnslagna, skipt var um alla ofna á efri hæð árið 2006 og ný inntaksgrind var sett upp í bílskúrnum á sama tíma. Einnig var sett snjóbræðsla í bílaplanið og stéttina á efri hæð hússins, þar sem frárennsli hússins er nýtt. Skift var um alla glugga og gler á þremur hliðum hússins 2006, vesturhlið er með upprunalega glugga og gler. Ástand raflagna. Rafmagnstafla er endurnýjuð árið 2006 um leið og settir voru tveir rafmagnsmælar, sér mælir fyrir hvora hæð. Loft á efri hæð er steinsteypt og þak yfir er timbur með bárujárni."
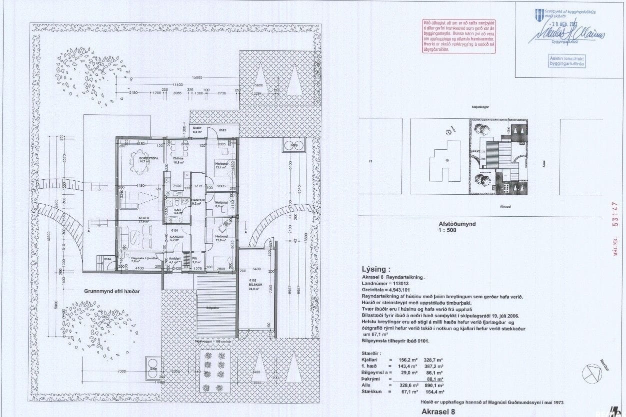
Þorsteinn Ólafs löggiltur fasteignasali og RE/MAX kynna í einkasölu fallega efri hæð, íbúð 01-01 við Akrasel 8 í Reykjavík. Heildarfasteignin er tvílyft steinsteypt íbúðarhús með 2 íbúðum. Þak er úr timbri með báruðum málmplötum. Tvær samþykktar íbúðir eru í húsinu, ein á neðri hæð og ein á efri hæð. Bílgeymsla er steinsteypt og tilheyrir íbúðinni á efri hæð. Lóð hússins er 945 fm leigulóð til 75 ára frá 1. október 1973 og er í óskiptri sameign. 4 bílastæði eru á lóðinni og eru tvö þeirra fyrir framan bílskúrinn að austanverðu og tilheyra þau íbúð efri hæðar.
Íbúðin á efri hæð hússins er 143,4 fm íbúð og skiptist í: 4,1 fm flísalagt anddyri með skápum. Frá anddyri er aðgengi í 7 fm geymslu og þvottaherbergi og þaðan er aðgengi út á timburverönd á lóðinni. 6,2 fm gangur með aðgengi í stofu til vinstri og með aðgengi í herbergi til hægri. Stofan er 27,9 fm og borðstofan er 14,7 fm. Frá borðstofu er aðgengi í rúmt eldhúsrými, 16,8 fm með innréttingu og eldhúsborði. Svefnherbergin eru þrjú, tvö stór, rúmlega 13 fm og eitt minna, 6 fm. Innbyggður skápur er í hjónaherbergi. Nýlegt parket er flæðandi á gólfum nema í herbergjum þar sem er korkur eða dúkur á gólfum. Baðherbergi er flísalagt með upphengdu salerni, sturtu, vaski með innréttingu og hillum. Þá fylgja íbúðinni 6 fm svalir og um 29 fm bílskúr. Einnig er í lóðinni skúr með útisvæði. Þá er á lóðinni sólpallur við hlið bílskúrs með 180 cm háum skjólvegg þar sem hægt er að hafa húsgögn, grill og tilheyrandi. Staðsetning er góð þar sem stutt er í ýmsa verslun s.s. Mjóddina og Smáralind. Skólar og íþróttasvæði ÍR er einnig í næsta nágreinni. Fyrirhugað fasteignamat 2026 er 104.050.000. Nánari upplýsingar veitir Þorsteinn Ólafs lögg. fasteignasali í síma 842-2212, to@remax.is.
Um skoðunar- og aðgæsluskyldu: Í lögum um fasteignakaup nr. 40/2002 er kveðið á um ríka skoðunarskyldu kaupenda á fasteignum. RE/MAX bendir væntanlegum kaupendum á að kynna sér vel ástand fasteigna við skoðun og fyrir tilboðsgerð og ef þurfa þykir að leita til sérfræðinga um nánari ástandsskoðun. Forsendur söluyfirlits: Söluyfirlit er samið af löggiltum fasteignasala í samræmi við ákvæði laga nr. 70/2015. Þær upplýsingar sem fram koma í söluyfirliti þessu eru sóttar í opinberar skrár, til seljanda sjálfs og eftir atvikum til húsfélags. Seljandi veitir upplýsingar um eign í samræmi við upplýsingaskyldu laga um fasteignakaup nr. 40/2002. Fasteignasali sannreynir að þær upplýsingar séu réttar með sjónskoðun á eigninni. Fasteignasali getur ekki fullyrt um ástand og eiginleika þeirra hluta fasteigna sem ekki eru aðgengilegir og sjást ekki berum augum, t.d. lagnir, dren, skólp og þak. Gjöld sem kaupandi þarf að standa straum af vegna kaupanna: 1. Stimpilgjald af kaupsamningi - 0,8%(einstaklingar) 1.6% (lögaðilar) af heildarfasteignamati. 2. Þinglýsingargjald af kaupsamningi, veðskuldabréfi, mögulegu veðleyfi o.fl. - kr. 2.700 af hverju skjali. 3. Lántökugjald lánastofnunar - almennt 45-75 þús.kr. Nánari upplýsingar á heimasíðu lánastofnana. 4. Umsýslugjald til fasteignasölu kr. 69.900 mvsk.
Vegna mikillar eftirspurnar vantar okkur allar tegundir eigna á skrá. Vinsamlega hafið samband við Þorstein Ólafs löggiltan fasteignasala í síma 842-2212 eða með pósti á to@remax.is.