Magnús Már Lúðvíksson og RE/MAX fasteignasala kynna - Grænahlíð 7 – Sveitasæla í seilingarfjarlægð frá borginni. Íbúðarhúsalóðin Grænahlíð 7, 805 Selfoss, í Grímsnes- og Grafningshreppi er 7.895,0 m² m² eignarlóð í íbúðarhverfi með rúmum byggingareit í nýju íbúðahverfi á þessum vinsæla stað á Suðurlandi sem er í um 45 mín akstri frá Reykjavík.
Allar nánari upplýsingar veita: Magnús Már Lúðvíksson, löggiltur fasteignasali í síma 699-2010 eða á netfangið maggi@remax.is
Grænahlíð 1-10 er í nýju íbúðahverfi við Úlfljótsvatn • Tíu íbúðarhúsa lóðir steinsar frá vatninu með óhindruðu útsýni. • Stutt frá borginni, um 45 mín akstur • Háhraða ljósleiðaratenging • Hitaveita • Fjórar teikningar í boði
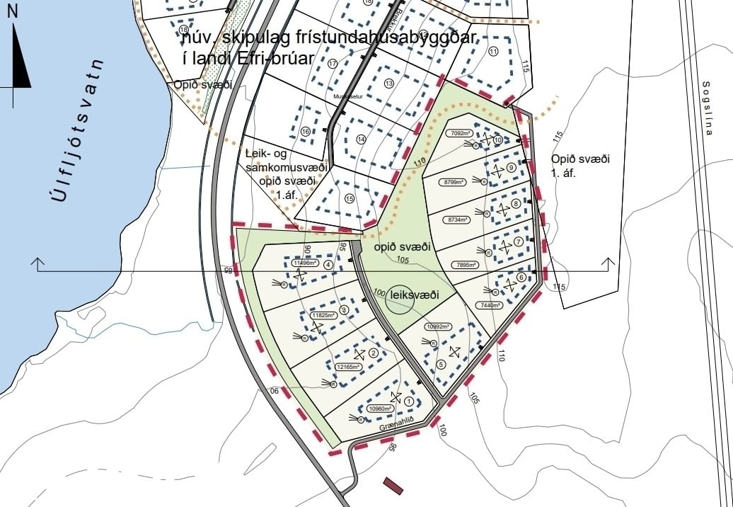
Í breyttu deiliskipulagi frá Landhönnun dags. 16.12.2020 er gert ráð fyrir 10 íbúðalóðum í hverfinu frá u.þ.b. 7.000m² upp í um 12.000m² sem og opnu svæði. Byggingareitir eru víðast hvar rúmir og miðast almennt við 20m fjarlægð frá lóðarmörkum nema þar sem aðstæður eru sérstakar t.d. við þjóðveg. Þannig gefst kostur á að velja byggingastað sem fellur vel að landi og aðstæðum.
Heimilt er að byggja íbúðahús á einni hæð allt að 250m² að stærð, ásamt 40m² útihúsi. Þar sem aðstæður leyfa er heimilt er að hafa kjallara undir hluta eða öllu húsi. Þetta á fyrst og fremst við þar sem landhalli byggingareits gefur tilefni til að taka upp hæðarmun í gegnum kjallara. Byggja má þannig allt að 540 m² eftir stærð lóðar.
Veldu lóð Allar lóðirnar hafa óhindrað útsýni yfir vatnið, aðgang að heitu vatni og háhraða ljósleiðaratengingu. Lóðirnar eru íbúðarhúsalóðir fyrir heilsárshús með leyfi til búsetu. Byggingarmagn lóða er allt að 500 m² íbúðarhús ásamt 40 m² útiskúr.
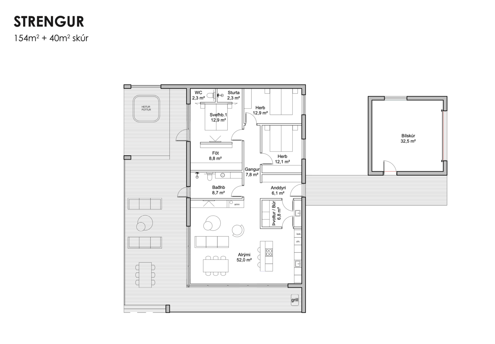
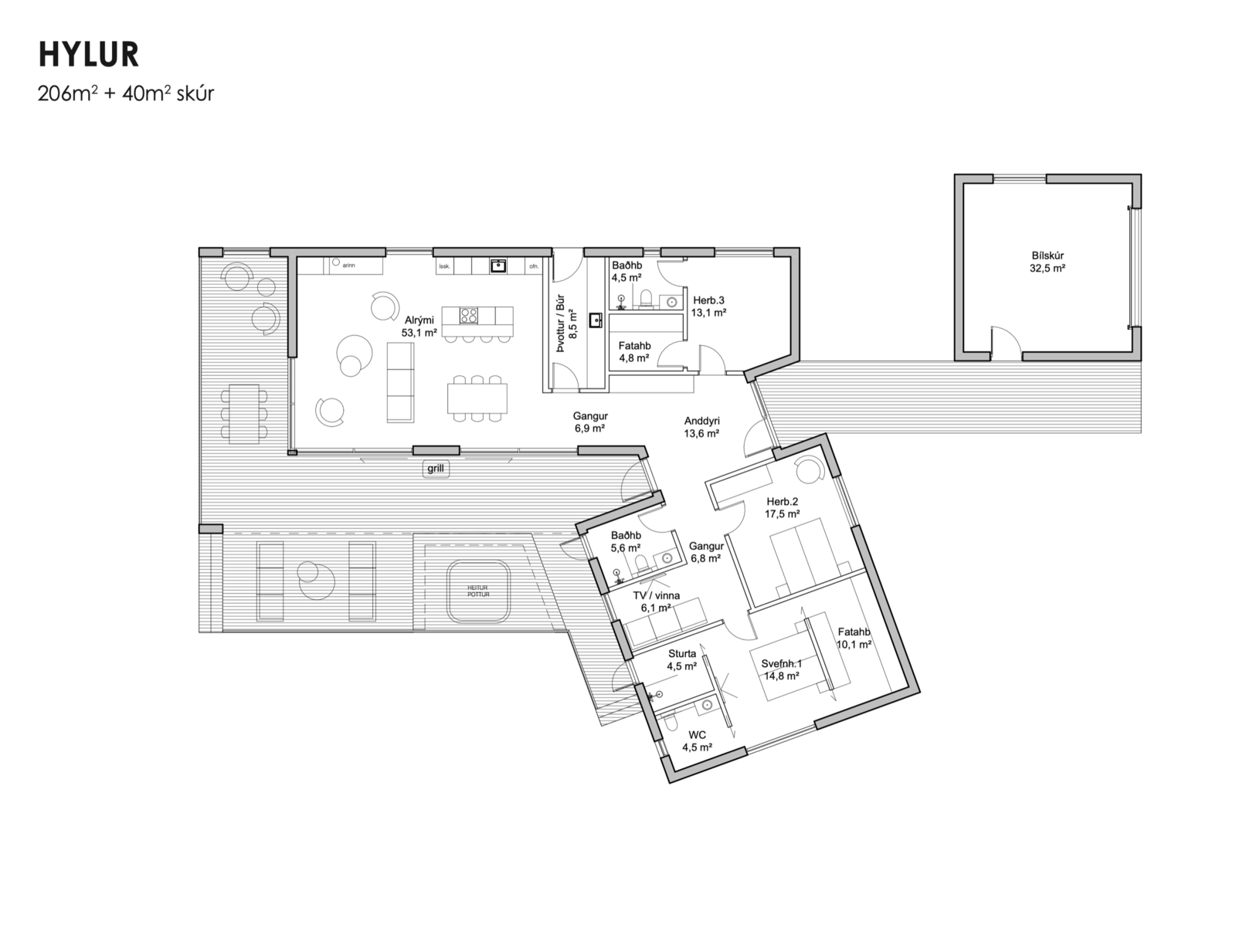
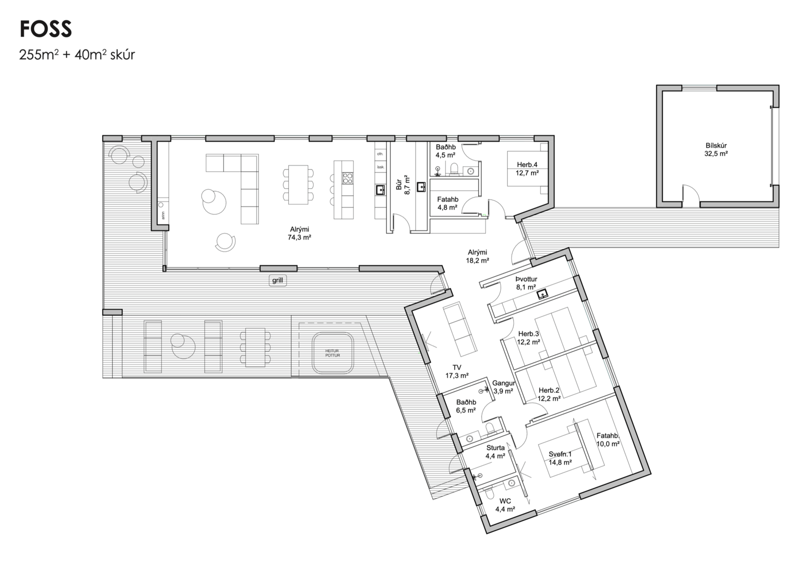
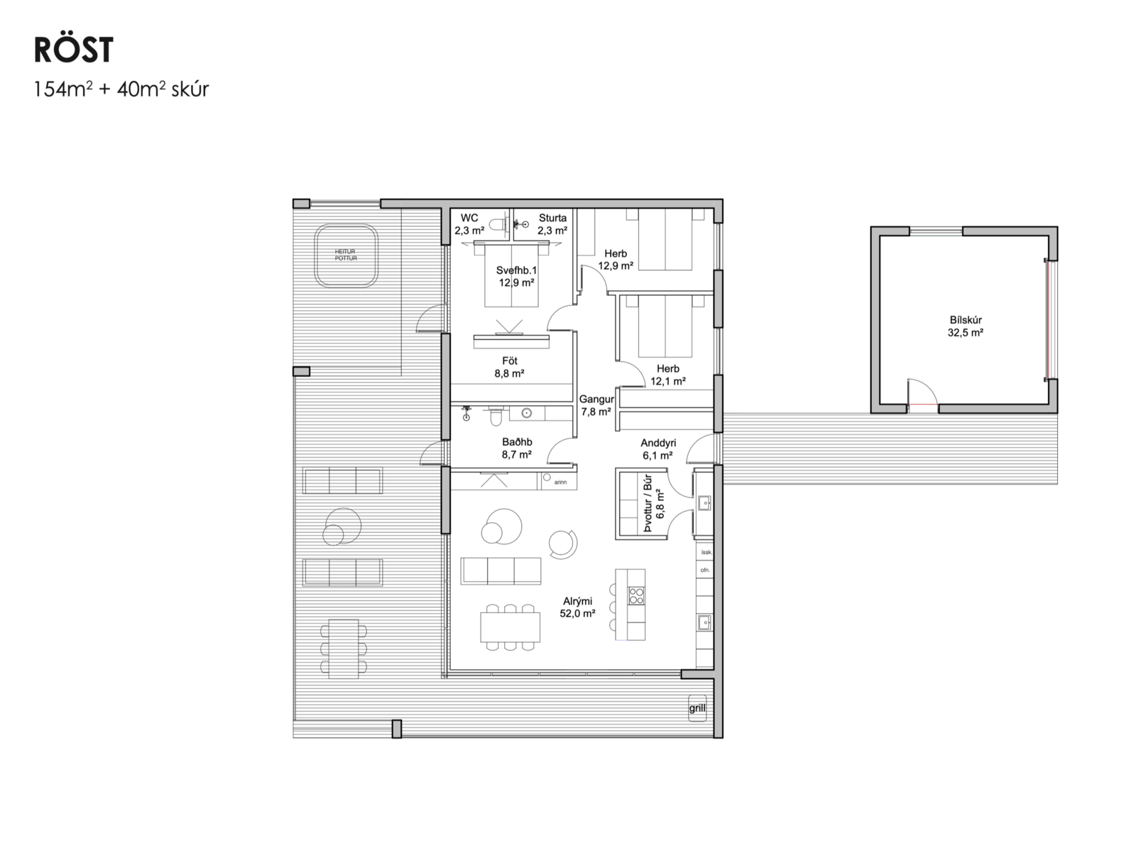
Veldu Draumahúsið Lóðunum fylgir val um 4 teikningar af stílhreinum og fallegum heilsárshúsum en ekki er skylt að kaupa teikningar af þeim með lóð. Heimilt er að gera kjallara undir öllum íbúðarhúsunum - sjá nánar í breyttu deiliskipulagi dags. 16.12.2020.
Foss: 255 m² + 40 m² skúr Hylur: 206 m² + 40 m² skúr Strengur: 156 m² + 40 m² skúr Röst: 154 m² + 40 m² skúr
Fastanúmer lóðanna Grænahlíð 1-10 eru: Grænahlíð 1 - 252-1960: 10.969,0 m² Grænahlíð 2 - 252-1958: 12.165,0 m² Grænahlíð 3 - 252-1957: 11.825,0 m² Grænahlíð 4 - 252-1956: 11.496,0 m² Grænahlíð 5 - 252-1955: 10.992,0 m² Grænahlíð 6 - 252-1954: 7.440,0 m² Grænahlíð 7 - 252-1953: 7.895,0 m² Grænahlíð 8 - 252-1952: 8.734,0 m² Grænahlíð 9 - 252-1951: 8.799,0 m² Grænahlíð 10 - 252-1959: 8.799,0 m²
Útsýni
Sameiginlegur
Fasteignanúmer
2521953
Húsgerð
Jörð/Lóð
Vatnslagnir
Á ekki við
Raflagnir
Á ekki við
Frárennslislagnir
Á ekki við
Gluggar / Gler
Á ekki við
Þak
Á ekki við
Lóðarréttindi
Eignarlóð
Svalir
Á ekki við
Upphitun
Á ekki við
Inngangur
Sameiginlegur
Matsstig
0 - Úthlutað
Kvöð / kvaðir
Leigusamningur um öll kaldavatnsréttindi úr lind við Gvenndarbrunnshæð í landi Efri-Brúar og Brúarholts (sjá þinglýst skjal nr. 433-A-002034/2007). Viðauka samkomulag vegna landsk.g. d. 10.07/1995. S.I. og B.G. skuli hafa gagnkv. forkaupsr. að eignarl. hins, (þ.e.útskiptu landi S.I., og hlutd. Brúarholts í óskiptu landi E.Brúar og Brúarholts), en synir þeirra að þeim gengnum (sjá þinglýst skjal nr. 433-A-001959/1995). Seljendur hafa neyðarumferðarrétt um umræddan veg vegna jarðanna Brúarholt fnr. 2345468 og Efri Brúar fnr. 2267862 (sjá þinglýst skjal nr. 447-X-002793/2022). Lóðir merktar "opið svæði" og "leiksvæði" verða breyttar í íbúðahúsalóðir seinna meir.
Magnús Már Lúðvíksson og RE/MAX fasteignasala kynna - Grænahlíð 7 – Sveitasæla í seilingarfjarlægð frá borginni. Íbúðarhúsalóðin Grænahlíð 7, 805 Selfoss, í Grímsnes- og Grafningshreppi er 7.895,0 m² m² eignarlóð í íbúðarhverfi með rúmum byggingareit í nýju íbúðahverfi á þessum vinsæla stað á Suðurlandi sem er í um 45 mín akstri frá Reykjavík.
Allar nánari upplýsingar veita: Magnús Már Lúðvíksson, löggiltur fasteignasali í síma 699-2010 eða á netfangið maggi@remax.is
Grænahlíð 1-10 er í nýju íbúðahverfi við Úlfljótsvatn • Tíu íbúðarhúsa lóðir steinsar frá vatninu með óhindruðu útsýni. • Stutt frá borginni, um 45 mín akstur • Háhraða ljósleiðaratenging • Hitaveita • Fjórar teikningar í boði
Í breyttu deiliskipulagi frá Landhönnun dags. 16.12.2020 er gert ráð fyrir 10 íbúðalóðum í hverfinu frá u.þ.b. 7.000m² upp í um 12.000m² sem og opnu svæði. Byggingareitir eru víðast hvar rúmir og miðast almennt við 20m fjarlægð frá lóðarmörkum nema þar sem aðstæður eru sérstakar t.d. við þjóðveg. Þannig gefst kostur á að velja byggingastað sem fellur vel að landi og aðstæðum.
Heimilt er að byggja íbúðahús á einni hæð allt að 250m² að stærð, ásamt 40m² útihúsi. Þar sem aðstæður leyfa er heimilt er að hafa kjallara undir hluta eða öllu húsi. Þetta á fyrst og fremst við þar sem landhalli byggingareits gefur tilefni til að taka upp hæðarmun í gegnum kjallara. Byggja má þannig allt að 540 m² eftir stærð lóðar.
Veldu lóð Allar lóðirnar hafa óhindrað útsýni yfir vatnið, aðgang að heitu vatni og háhraða ljósleiðaratengingu. Lóðirnar eru íbúðarhúsalóðir fyrir heilsárshús með leyfi til búsetu. Byggingarmagn lóða er allt að 500 m² íbúðarhús ásamt 40 m² útiskúr.
Veldu Draumahúsið Lóðunum fylgir val um 4 teikningar af stílhreinum og fallegum heilsárshúsum en ekki er skylt að kaupa teikningar af þeim með lóð. Heimilt er að gera kjallara undir öllum íbúðarhúsunum - sjá nánar í breyttu deiliskipulagi dags. 16.12.2020.
Foss: 255 m² + 40 m² skúr Hylur: 206 m² + 40 m² skúr Strengur: 156 m² + 40 m² skúr Röst: 154 m² + 40 m² skúr
Fastanúmer lóðanna Grænahlíð 1-10 eru: Grænahlíð 1 - 252-1960: 10.969,0 m² Grænahlíð 2 - 252-1958: 12.165,0 m² Grænahlíð 3 - 252-1957: 11.825,0 m² Grænahlíð 4 - 252-1956: 11.496,0 m² Grænahlíð 5 - 252-1955: 10.992,0 m² Grænahlíð 6 - 252-1954: 7.440,0 m² Grænahlíð 7 - 252-1953: 7.895,0 m² Grænahlíð 8 - 252-1952: 8.734,0 m² Grænahlíð 9 - 252-1951: 8.799,0 m² Grænahlíð 10 - 252-1959: 8.799,0 m²