Dagbjartur Willardsson löggiltur fasteignasali og RE/MAX kynna Sunnubraut 15, Garði í Suðurnesjabæ fnr. 209-5742
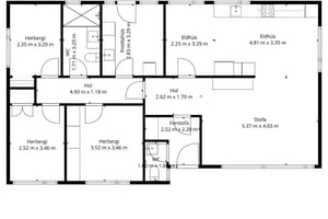
Eignin er skráð 157,6 fm og húsið er timburhús á einni hæð og er skráð byggingarár 1973. Íbúðarhlutinn er skráður 120,8 fm og bílskúr 36,8 fm. Stór lóð afgirt og smekkleg lóð sem er skráð 1.050fm. Einnig gott að sjá skipulag hússins á teikningu sem er þar sem ljósmyndirnar eru af eigninni.
FÁÐU SENT SÖLUYFIRLIT YFIR EIGNINA HÉR.
Nánari lýsing:
Aðkoma: Grófjöfnuð lóð fyrir framan bílskúr með möl. Steypt stétt að inngangi í húsið og sólpallur með skjólveggjum.
Forstofa: Flísar á gólfi. Fataskápur.
Gestasnyrting: Flísar á gólfi. Salerni og handlaug.
Stofa/borðstofa: Parket á gólfi. Stórir gluggar til suðurs sem veita góða birtu í rýmið.
Eldhús: Parket á gólfi. Falleg nýleg innrétting. Breitt helluborð með háfi yfir. Bakstursofn og örbylgjuofn í vinnuhæð. Innbyggð uppþvottavél.
Þvottahús: Stórt og rúmgott rými með útgönguhurð á baklóðina.
Svefnherbergi: Eru þrjú og er parket á gólfum þeirra.
Baðherbergi: Flísalagt í hólf og gólf. Inngöngusturtu með glerþili. Innrétting með handlaug. Handklæðaofn. Gluggi er í rýminu.
Bílskúr: Stór skúr með rafmagni og köldu vatni.
Lóð: Virkilega snyrtileg lóð. Baklóð sem snýr til norðurs er tyrft. Framlóðin er einnig tyrft og einstaklega vel við haldið. Góður pallur með skjólveggjum á framlóð sem snýr til suðurs.
Sunnubraut 15 er einstaklega fallegt hús sem stendur á stórri afgirtri lóð sem er einstaklega vel við haldið og í góðri rækt. Útsýni til sjávar og fjallasýn til norðurs. Stór sólpallur á framlóð sem snýr til suðurs. Eldhús og baðherbergi voru tekin í gegn á smekklegan hátt á síðustu árum.
Allar nánari upplýsingar veita Dagbjartur Willardsson lgf. í síma 861-7507 eða daddi@remax.is.
Ég býð upp á frítt söluverðmat á þinni eign og veiti góða og lipra þjónustu.
Gjöld sem kaupandi þarf að standa straum af vegna kaupanna: 1. Stimpilgjald af kaupsamningi - 0,8% af heildarfasteignamati hjá einstaklingum. (Sé um fyrstu kaup að ræða er stimpilgjald af kaupsamningi 0,4%) 2. Stimpilgjald af kaupsamningi - 1,6% af heildarfasteignamati hjá lögaðilum. 3. Þinglýsingagjald af kaupsamningi, veðskuldabréfi, veðleyfi o.fl. 2.700 kr. af hverju skjali. 4. Lántökugjald lánastofnunar - sjá heimasíður lánastofnanna. 5. Umsýslugjald til fasteignasölu 69.900. kr. m.vsk.
Í lögum um fasteignakaup nr. 40/2002 er kveðið á um ríka skoðunarskyldu kaupenda á fasteignum. Vill RE/MAX því skora á væntanlega kaupendur að kynna sér vel ástand fasteigna fyrir kauptilboðsgerð og leita til þar til bærra sérfræðinga um nánari skoðun.
Dagbjartur Willardsson löggiltur fasteignasali og RE/MAX kynna Sunnubraut 15, Garði í Suðurnesjabæ fnr. 209-5742
Eignin er skráð 157,6 fm og húsið er timburhús á einni hæð og er skráð byggingarár 1973. Íbúðarhlutinn er skráður 120,8 fm og bílskúr 36,8 fm. Stór lóð afgirt og smekkleg lóð sem er skráð 1.050fm. Einnig gott að sjá skipulag hússins á teikningu sem er þar sem ljósmyndirnar eru af eigninni.
FÁÐU SENT SÖLUYFIRLIT YFIR EIGNINA HÉR.
Nánari lýsing:
Aðkoma: Grófjöfnuð lóð fyrir framan bílskúr með möl. Steypt stétt að inngangi í húsið og sólpallur með skjólveggjum.
Forstofa: Flísar á gólfi. Fataskápur.
Gestasnyrting: Flísar á gólfi. Salerni og handlaug.
Stofa/borðstofa: Parket á gólfi. Stórir gluggar til suðurs sem veita góða birtu í rýmið.
Eldhús: Parket á gólfi. Falleg nýleg innrétting. Breitt helluborð með háfi yfir. Bakstursofn og örbylgjuofn í vinnuhæð. Innbyggð uppþvottavél.
Þvottahús: Stórt og rúmgott rými með útgönguhurð á baklóðina.
Svefnherbergi: Eru þrjú og er parket á gólfum þeirra.
Baðherbergi: Flísalagt í hólf og gólf. Inngöngusturtu með glerþili. Innrétting með handlaug. Handklæðaofn. Gluggi er í rýminu.
Bílskúr: Stór skúr með rafmagni og köldu vatni.
Lóð: Virkilega snyrtileg lóð. Baklóð sem snýr til norðurs er tyrft. Framlóðin er einnig tyrft og einstaklega vel við haldið. Góður pallur með skjólveggjum á framlóð sem snýr til suðurs.
Sunnubraut 15 er einstaklega fallegt hús sem stendur á stórri afgirtri lóð sem er einstaklega vel við haldið og í góðri rækt. Útsýni til sjávar og fjallasýn til norðurs. Stór sólpallur á framlóð sem snýr til suðurs. Eldhús og baðherbergi voru tekin í gegn á smekklegan hátt á síðustu árum.
Allar nánari upplýsingar veita Dagbjartur Willardsson lgf. í síma 861-7507 eða daddi@remax.is.
Ég býð upp á frítt söluverðmat á þinni eign og veiti góða og lipra þjónustu.
Gjöld sem kaupandi þarf að standa straum af vegna kaupanna: 1. Stimpilgjald af kaupsamningi - 0,8% af heildarfasteignamati hjá einstaklingum. (Sé um fyrstu kaup að ræða er stimpilgjald af kaupsamningi 0,4%) 2. Stimpilgjald af kaupsamningi - 1,6% af heildarfasteignamati hjá lögaðilum. 3. Þinglýsingagjald af kaupsamningi, veðskuldabréfi, veðleyfi o.fl. 2.700 kr. af hverju skjali. 4. Lántökugjald lánastofnunar - sjá heimasíður lánastofnanna. 5. Umsýslugjald til fasteignasölu 69.900. kr. m.vsk.
Í lögum um fasteignakaup nr. 40/2002 er kveðið á um ríka skoðunarskyldu kaupenda á fasteignum. Vill RE/MAX því skora á væntanlega kaupendur að kynna sér vel ástand fasteigna fyrir kauptilboðsgerð og leita til þar til bærra sérfræðinga um nánari skoðun.