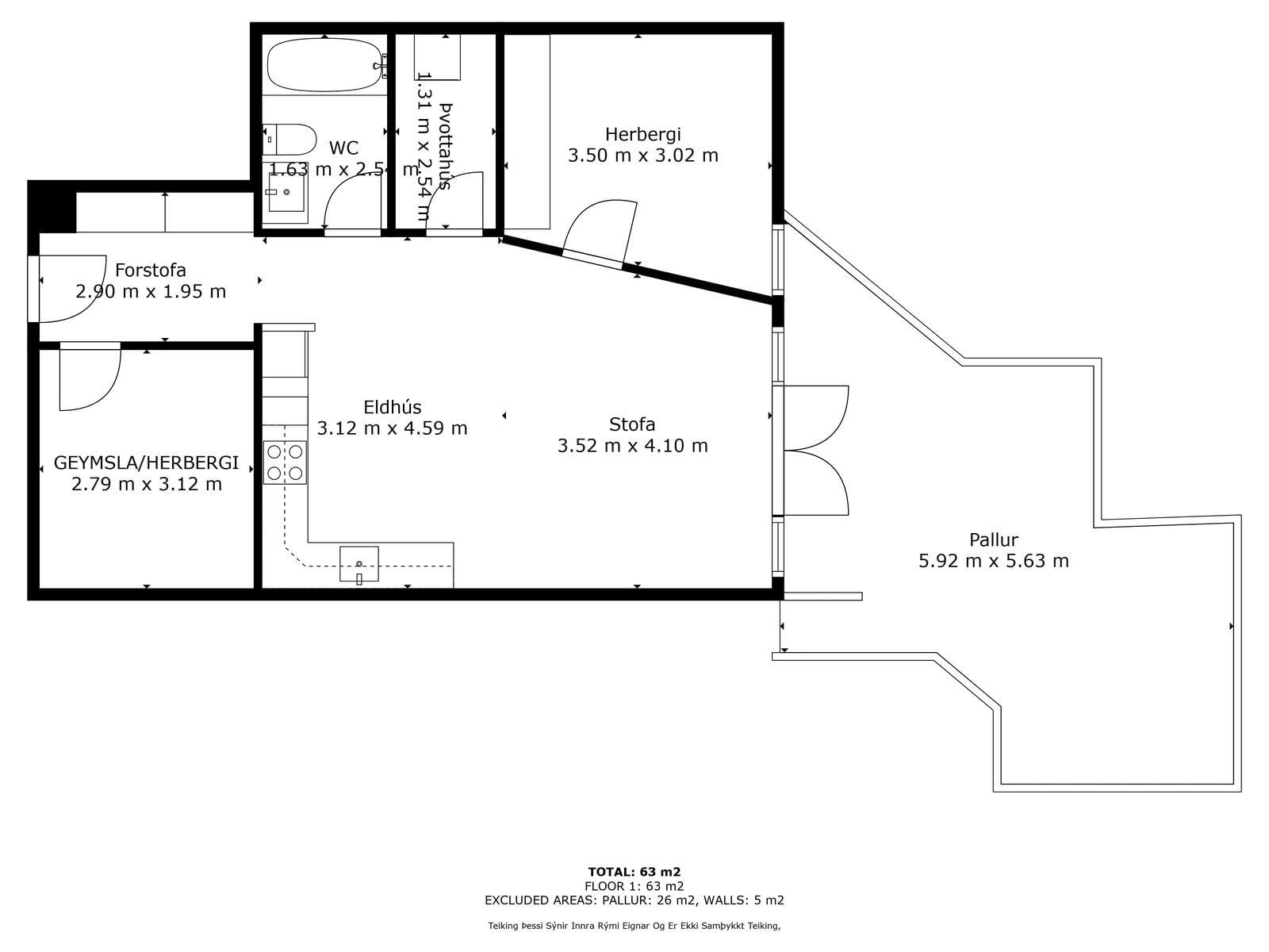
Dagbjartur Willardsson löggiltur fasteignasali og RE/MAX kynna, Naustabryggju 15, íbúð 0102 fnr. 225-8172 Íbúðin er skráð hjá þjóðskrá 63 fm og þar af er geymsla 4,8 fm. Skráð byggingarár hússins er 2002 Húsið er 4 hæða og er íbúðin á 1. hæð hússins. Íbúðin skiptist í opið alrými þar sem stofa og eldhús mynda eitt rými. Rúmgott svefnherbergi og baðherbergi og svo er sér þvotthúsrými. Einnig er herbergi/vinnurými sem er gluggalaust. Gengið er út á pall til suðurs út úr stofu og er einstakur sælureitur og góð viðbót við íbúðina. Sjá nánar skipulag íbúðar á teikningu sem er þar sem ljósmyndir af eigninni eru á síðunni.
FÁÐU SENT SÖLUYIRLIT YFIR EIGNINA HÉR.Nánari lýsing:Forstofa: Flísar á gólfi. Fataskápur.
Stofa/borðstofa: Parket á gólfi.
Geymsla/vinnuherbergi: Gengið til hægri úr anddyri og er rými gluggalaust. Parket á gólfi.
Svefnherbergi: Parket á gólfi. Fatakápur.
Pallur: Pallur til suðurs með skjólveggjum.
Eldhús: Parket á gólfi. Eikarinnrétting. Helluborð með viftu yfir. Bakstursofn. Flísalagt er á milli efri og neðri skápa.
Baðherbergi: Flísar á gólfi sem og við baðkar. Baðkar með sturtutæki og glerþili. Innrétting með handlaug. Salerni.
Þvottahús: Málað gólf. Hillur.
Geymsla: Er í kjallara og er skráð 4,8 fm. Einnig er sameiginleg hjóla/vagnageymsla á hæðinni og dekkjageymsla í kjallara.
Naustabryggja 15 er lítil íbúð með yndislegum pallli til suðurs sem er góð viðbót við íbúðina. Allar nánari upplýsingar veitir:Dagbjartur Willardsson lgf hjá RE/MAX í s:
861-7507 eða á
daddi@remax.isGjöld sem kaupandi þarf að greiða vegna kaupanna: 1. Stimpilgjald af kaupsamningi - 0,8% af heildarfasteignamati hjá einstaklingum. Sé um fyrstu kaup að ræða er stimpilgjald af kaupsamningi 0,4% af heildarfasteignamati.
2. Stimpilgjald af kaupsamningi - 1,6% af heildarfasteignamati hjá lögaðilum.
3. Þinglýsingargjald af kaupsamningi, veðskuldabréfi, veðleyfi og fl. 2.700 kr. af hverju skjali.
4. Lántökugjald lánastofnunar - breytilegt, sjá gjaldskrá á heimasíðum lánastofnana.
5. Umsýslugjald til fasteignasölu 69.900 kr. m.vsk.
Í
lögum um fasteignakaup nr. 40/2002 er kveðið á um ríka skoðunarskyldu kaupenda á fasteignum. Vill RE/MAX því skora á væntanlega kaupendur að kynna sér vel ástand fasteigna fyrir kauptilboðsgerð og leita til þar til bærra sérfræðinga um nánari skoðun.