RE/MAX Ísland logo
Skráð 8. des. 2025
Söluyfirlit

Kópavogsbarð 5

ParhúsHöfuðborgarsvæðið/Kópavogur-200
266.2 m2
6 Herb.
5 Svefnh.
2 Baðherb.
Verð
194.900.000 kr.
Fermetraverð
732.156 kr./m2
Fasteignamat
179.750.000 kr.
Brunabótamat
136.150.000 kr.
RE/MAX
Mynd af Brynjar Ingólfsson
Brynjar Ingólfsson
Löggiltur fasteignasali
Byggt 2008
Þvottahús
Garður
Útsýni
Gæludýr leyfð
Sérinngangur
Fasteignanúmer
2298036
Húsgerð
Parhús
Byggingarefni
Steypt
Númer hæðar
1
Hæðir í húsi
2
Hæðir í íbúð
2
Númer íbúðar
1
Vatnslagnir
Í lagi
Raflagnir
Í lagi
Frárennslislagnir
Í lagi
Gluggar / Gler
Í lagi
Þak
Í lagi
Lóðarréttindi
Leigulóð
Svalir
Upphitun
Hitaveita
Inngangur
Sérinngangur
Matsstig
7 - Fullgerð bygging
Gallar
Rakasmit er við svalir og þakglugga. Einnig er raki útfrá sturtu niðri. Tilboð í viðgerðina mun liggja fyrir frá ábyrgum fagaðila sem kaupandi getur gengið inn í. Tekið var tillit til þessa í verðlagningu.
Brynjar Ingólfsson MSc. og löggiltur fasteignasali kynnir: Afar fallegt og vel skipulagt 266 fm, 6 herbergja parhús á vinsælum stað í Vesturbæ Kópavogs.  Húsið er klætt að utan og allt umhverfi þess hið fallegasta.

- Fasteignamat 2026 - 179.750.000
- 5 svefnherbergi
- 4-5 bílastæði á lóð 
- Fallegt útsýni af efri hæð
- Gólfhiti / sólarvarnargler í húsinu

SKOÐAÐU EIGNINA Í 3D HÉR (MEÐ OG ÁN HÚSGAGNA)


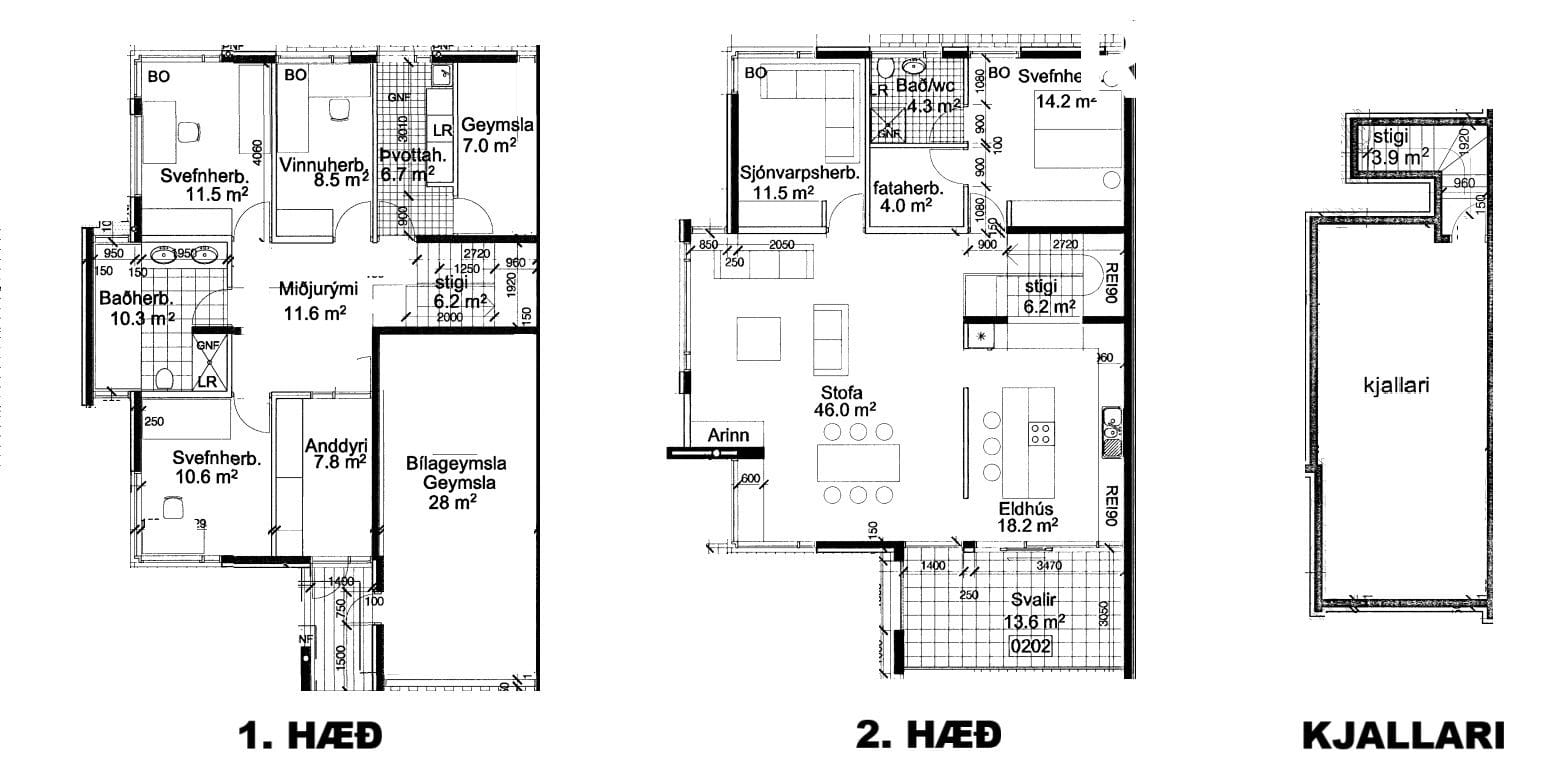
Skipting eignar skv Þjóðskrá Íslands: Íbúðarrými 235 fm og bílskúr 31 fm. 

Neðri hæð:
Forstofa er flísalögð með fataskápum og inn af því er flísalagt hol.
Þrjú svefnherbergi eru á neðri hæð með parketi á gólfum og fataskápar í tveimur þeirra.
Baðherbergið er glæsilegt, flísalagt í hólf og gólf með sturtu, baðkari, fallegri innréttingu og innbyggðu salerni.
Þvottahúsið er flísalagt með stórri innréttingu og útgengt er út á baklóð.  Geymsla inn af þvottahúsi.

Efri hæð:
Stofan og borðstofan eru í opnu og björtu rými með parketi á gólfi.
Falleg og rúmgóð Hanak innrétting er í eldhúsi ásamt stórri eldhúseyju með Span-helluborði. Tveir ofnar eru í innréttingunni.  Flísar á gólfi.
Hjónaherbergi er með parketi á gólfi og inn af því er fataherbergi og baðherbergi með sturtu og innbyggðu salerni.
Herbergi / sjónvarpsherbergi er með parketi á gólfi.

Úr stofu eldhúsi er útgengt út á stórar 13,6 fm svalir með fallegu útsýni.  
Í kjallara er rúmgott geymslurými þar sem gólfhitastýringin er og inntök.

Bílskúrinn er 31 fm með flísalagt gólf, innréttingu og sjálfvirkum hurðaopnara. Lóðin virkilega snyrtileg og falleg.

Nánari upplýsingar gefur Brynjar Ingólfsson MSc, löggiltur fasteignasali s. 666 8 999 / brynjar@remax.is
 
Byggt 2008
3.1 m2
Fasteignanúmer
2298036
Byggingarefni
Steypt
Númer hæðar
01
Númer eignar
02
Húsmat
0 kr.
Lóðarmat
0 kr.
Brunabótamat
11.500.000 kr.
Matsstig
7 - Fullgerð bygging

Sambærilegar eignir

Opna eign
3D Sýn
Image
Opna eign
Sæbólsbraut 14
200 Kópavogur
309.5 m2
Raðhús á tveimur hæðum
1028
588 þ.kr./m2
181.900.000 kr.
Opna eign
Image
Opna eign
Digranesheiði 27
200 Kópavogur
244.2 m2
Einbýlishús
745
799 þ.kr./m2
195.000.000 kr.
Opna eign
Image
Opna eign
Fróðaþing 1
203 Kópavogur
281.7 m2
Einbýlishús á tveimur hæðum
634
744 þ.kr./m2
209.500.000 kr.
Opna eign
3D Sýn
Image
Opna eign
Furuhjalli 16
200 Kópavogur
245.6 m2
Einbýlishús með aukaíbúð
346
812 þ.kr./m2
199.500.000 kr.
RE/MAX Ísland logo
Við vinnum fyrir þig
Hafðu samband
skrifstofa@remax.isS: 4777777
Skeifunni 17
kt. 480506-0810
Hlekkir
Samfélagsmiðlar
© Copyright 2026 - RE/MAX Ísland
Knúið af
Fasteignaleitin