RE/MAX Ísland logo
Skráð 20. okt. 2024
Söluyfirlit

Hestamýri 1B

Nýbygging • FjölbýlishúsHöfuðborgarsvæðið/Garðabær-225
143.5 m2
2 Herb.
1 Svefnh.
2 Baðherb.
Verð
119.900.000 kr.
Fermetraverð
835.540 kr./m2
Fasteignamat
107.750.000 kr.
Brunabótamat
104.280.000 kr.
RE/MAX
Mynd af Guðlaugur Jónas Guðlaugsson
Guðlaugur Jónas Guðlaugsson
Löggiltur fasteignasali
Byggt 2024
Þvottahús
Lyfta
Garður
Sameiginlegur
Fasteignanúmer
2532121
Húsgerð
Fjölbýlishús
Byggingarefni
Steypt
Númer hæðar
1
Númer íbúðar
4
Vatnslagnir
Nýbygging
Raflagnir
Nýbygging
Frárennslislagnir
Nýbygging
Gluggar / Gler
Nýbygging
Þak
Nýbygging
Lóðarréttindi
Leigulóð
Svalir
Sérafnotaflötur / Verönd
Upphitun
Gólfhiti
Inngangur
Sameiginlegur
Matsstig
7 - Fullgerð bygging
Guðlaugur J. Guðlaugsson og Gunnar Sverrir löggiltir fasteignasalar hjá RE/MAX fasteignasölu kynna í einkasölu: 

Nýja byggð við Hestamýri 1-6 á Álftanesi, 225 Garðabæ. Aðalverktaki, Flotgólf ehf.


Um er ræða mjög vönduð og vel skipulögð lyftu fjölbýlishús. Stæði í bílageymslu fylgir með flestum íbúðum og með sumum íbúðum fylgir sér bílskúr inn í bílageymslu og þær því með tvö stæði. 

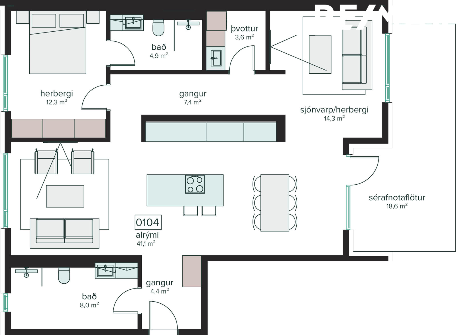
Nánar um eign, íbúð 01-0104, Hestamýri 1B:
Eignin er þriggja herbergja herbergja íbúð á 1. hæð matshlutans 01, merkt  0104, birt stærð 112,1 fm. Eigninni tilheyrir geymsla í kjallara matshlutans 01, merkt 0012, birt stærð 7,5 fm. og sér bílskúr í bílageymslu matshluta 01, merkt 0036, birt stærð 23,9 fm. Eigninni tilheyrir jafnframt  lóðarhluti undir verönd (sjá samþykkta aðaluppdrætti). Birt heildarstærð séreignar er 143,5 fm. Íbúðinni fylgir sér stæði í bílakjallara merkt B20. 

Ath! Í dag er eignin ranglega skráð í eignaskiptasamningi með bílskúr merktan 01-0034, birt stærð 26,8 fm. og með stæði í bílageymslu merkt 01B22 ásamt geymslu merkt 01-0010. Verið er að vinna í að útbúa viðauka við eignaskiptasamning til að breyta þeirri skráningu. Eignin verður eftir þá breytingu skráð með bílskúr í bílageymslu merktan 01-0036, birt stærð 23,9 fm. og geymslu merkta 01-0012, birts stærð 7,5 fm. Heildarstærð á íbúð 01-0104 verður þá réttilega skráð samtals 143,5 fm. ( en ekki 164,8 fm. ) 

Íbúðirnar eru hannaðar að innan af Sæju innanhúshönnuði.
Vandaðar innréttingar og steinn á borðum. Glæsilegt útsýni, stórar stofur, gólfhiti og aukin lofthæð. Íbúðirnar eru allar með gólfsíðum gluggum svo hægt sé að njóta fallegs útsýni til sjávar – og fjalla, Álftanes og víðar.

Á milli húsanna eru 80 sameiginleg bílastæði og þar af eru 5 sérmerkt bílastæði fyrir hreyfihamlaða. Samtals eru svo þrír bílakjallarar með 82 bílastæðum og 44 bílskúrum fyrir 86 íbúðir í Hestamýri 1-6.
Bílastæða mál eru þ.a.l til fyrirmyndar og veitir með þeim fjölda bílastæða aukin lífsgæði fyrir alla íbúa í Hestamýri 1-6 sem og gesti þeirra.

Smelltu á link til að skoða sýningaríbúð í 3D, íbúð 203 Hestamýri 1A

Bókið skoðun hjá Gulla í síma 661-6056 eða með tölvupósti á netfangið gulli@remax.is

Sjá má skilalýsingu, verðlista og nánari upplýsingar inn á heimasíðu verkefnisins: Hestamyri.is

Almennt um íbúðirnar
Innréttingar eru sérsmíðaðar með fallegu efnisvali og ná upp í loft. Innréttingar koma frá Parka og heimilistæki eru frá Ormsson. Flísar í íbúðum eru hágæða ítalskar flísar frá Porcalenosa. Fallegt 12mm harðparket frá Parka er á öllum íbúðum. Gólfhiti er í öllum íbúðarrýmum.
Allar íbúðir eru með loftskiptikerfi sem tekur loft inn og út úr hverju rými. Þetta kerfi nýtir líka afgangsvarma frá útloftun til þess að hita kalt ferskt loft sem tekið er inn og með því getur orka sparast. Öllum íbúðum er skilað fullbúnum með innréttingum, tækjum og gólfefnum. Baðherbergi eru flísalögð í hólf og gólf með flísum frá Porcalenosa. Þvottahús eru með gólfflísum og sökklum. Innréttingar koma frá Parka og voru hannaðar af Sæbjörgu Guðjónsdóttur. Quartz borðplötur eru á baðherbergjum og eldhúsi og á vegg bak við eldhúsvask. Steinplötur koma frá og eru settar upp af S Helgason. Innréttingar eru klæddar með melamín hnotu, nema í þvottahúsum þar sem er slétt einlitt melamín grátt að lit. Þetta eru allt tveggja til fjögurra herbergja íbúðir. Stærðir eru frá 90.7 fm til 198.5 fm. Öllum íbúðum fylgir sér bílastæði í bílageymslu. 16 af þeim íbúðum eru með sér lokaða bílskúra í bílageymslu, inn af sumum bílskúrum er sér geymsla, hjá öðrum er geymsla staðsett á geymslugangi.
Á þriðju hæð, efstu hæð. Er þriggja metra lofthæð í íbúðum og Free-at-home kerfi. Þaksvalir þar eru með heitum potti. Öllum íbúðum á þriðju hæð fylgir sér bílskúr í bílageymslu

Almennt um húsið
Húsið Hestamýri 1-2 skiptist í tvær byggingar fyrir ofan sameiginlegan bílakjallara, önnur byggingin er tvær hæðir og hin þrjár hæðir og tvö stigahús eru í hverju húsi. Veggir eru staðsteyptir og einangraðir að utan með steinull. Botnplata og útveggir í kjallara er steypt í SikaProof vatnsvarnardúk frá Sika til að tryggja að ekkert vatn komist að steypu. Veggir undir jarðvegi eru einangraðir með EPS plasteinangrun. Húsið er klætt með undirkerfi og álklæðningu frá Málmtækni pönnur og trapísuklæðning til skipts. Veggir inn á svalir og sérafnotareiti eru klæddir með Bambus harðvið frá Málmtækni. Kjallari er undir öllu húsinu með 28 sérmerktum bílastæðum og 16 lokuðum bílskúrum. Geymslur eru á geymslugöngum og inn af bílskúrum. Hjólageymslur eru í kjallara fyrir hvert stigahús og sameiginleg hjólageymsla er í garði á milli húsana ofaná bílgeymslunni. Lóðin er sameiginleg fyrir Hestamýri 1-3. Á milli húsanna eru 80 sameiginleg bílastæði og þar af eru 5 sérmerkt bílastæði fyrir hreyfihamlaða.
Svæðið

Frá Hestamýri er stutt í leikskóla, skóla, sund og íþróttahús og sparkvelli. Örugg göngu/hjólaleið þar sem ekki þarf að fara yfir götu. Á Álftanesi er líka mjög falleg strandlengja sem hentar vel til göngu og útiveru. Göngu- og hjolastígur liggur út á nesið fyrir þá sem vija fara í lengri ferðir. Þá er hestamannafélagið Sóti með aðstöðu á Álftanesi, margar fallegar reiðleiðir þar í kring.

Afhendingartími / Til upplýsingar um Hestamýri 1-6: 
Íbúðir í húsi 1-2 eru tilbúnar til afhendingar við kaupsamning.
Íbúðir í húsi 3-4 eru tilbúnar til afhendingar við kaupsamning.
Íbúðir í húsi 5-6 fara í söluferli árið 2026.

Að verkinu standa eftirtaldir aðilar:
Húsbyggjandi er Hestamýri ehf.
Arkitekt og aðalhönnuður er Nordic Office of Architecture og Birkir Árnason.
Verkfræðihönnun, Verkfræðistofu Kópavogs
Raflagnahönnun, Agnar Sveinsson
Innanhúshönnun, Sæbjörg Guðjónsdóttir
Aðalverktaki, Flotgólf ehf.

Nánari upplýsingar veita: Guðlaugur J. Guðlaugsson/Gulli löggiltur fasteignasali í síma 661-6056 / gulli@remax.is og Gunnar Sverrir löggiltur fasteignasali í síma 862-2001 / gunnar@remax.is
Vegna mikillar eftirspurnar vantar okkur allar tegundir eigna á skrá. Hafið samband og við munum verðmeta eign þína þér að kostnaðarlausu.

Gjöld sem kaupandi þarf að standa straum af vegna kaupanna:
1.  Stimpilgjald af kaupsamningi 0,8%, ( 0,4% ef um fyrstu kaup er að ræða ) og 1.6% (ef um lögaðila er að ræða) af heildar fasteignamati.
2.  Þinglýsingargjald af kaupsamningi, veðskuldabréfi, mögulegu veðleyfi o.fl. - kr. 2.700 af hverju skjali.
3.  Lántökugjald lánastofnunar -  Nánari upplýsingar á heimasíðum lánastofnana.
4. Umsýslugjald til fasteignasölu kr. 69.900.-
 
 
 
Byggt 2024
Fasteignanúmer
2532121
Byggingarefni
Steypt
Númer hæðar
B2
Númer eignar
2
Húsmat
0 kr.
Lóðarmat
0 kr.
Fasteignamat samtals
0 kr.
Brunabótamat
8.880.000 kr.
Matsstig
7 - Fullgerð bygging
Byggt 2024
23.9 m2
Fasteignanúmer
2532121
Byggingarefni
Steypt
Númer hæðar
00
Númer eignar
34
Húsmat
0 kr.
Lóðarmat
0 kr.
Fasteignamat samtals
0 kr.
Brunabótamat
11.150.000 kr.
Matsstig
7 - Fullgerð bygging

Sambærilegar eignir

Opna eign
Image
Opna eign
Grásteinsmýri 2 - íbúð 107
225 Garðabær
144.8 m2
Fjölbýlishús með lyftu
43
870 þ.kr./m2
126.000.000 kr.
Opna eign
Image
Opna eign
Grásteinsmýri 1 - íbúð 205
225 Garðabær
122 m2
Fjölbýlishús
413
901 þ.kr./m2
109.900.000 kr.
Opna eign
Image
Opna eign
Grásteinsmýri 2 306
225 Garðabær
124.9 m2
Fjölbýlishús
413
904 þ.kr./m2
112.900.000 kr.
Opna eign
Image
Opna eign
Grásteinsmýri 2 íbúð 207
225 Garðabær
144.8 m2
Fjölbýlishús með lyftu
524
870 þ.kr./m2
126.000.000 kr.
RE/MAX Ísland logo
Við vinnum fyrir þig
Hafðu samband
skrifstofa@remax.isS: 4777777
Skeifunni 17
kt. 480506-0810
Hlekkir
Samfélagsmiðlar
© Copyright 2026 - RE/MAX Ísland
Knúið af
Fasteignaleitin