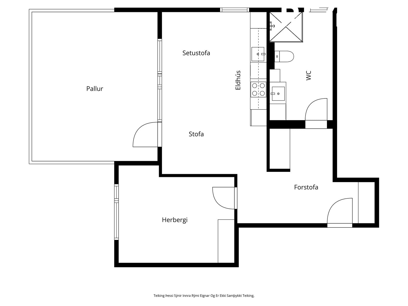
Íbúðin er skráð hjá þjóðskrá 71,1 fm. Skráð byggingarár hússins er 2021. Húsið er 2 hæða og eru fjórar íbúðir í húsinu og er íbúðin á jarðhæð hússins. Íbúðin er með stóru svefnherbergi með fataskáp. Stofa-eldhús-borðstofa er rúmgott með útgengi út á sólpall. Fallegt baðherbergi með inngöngusturtu.
Nánari lýsing:
Forstofa: Harðparket á gólfi. Rúmgóðir fataskápar
Stofa/borðstofa/eldhús: Harðparket á gólfi. Bakstursofn í vinnuhæð. Innbygður kæli/frystiskápur sem og uppþvottavél. Hvít/svört eldhúsinnrétting. Spansuðuhelluborð.
Pallur: Útgengt á góðan pall með skjólveggum.
Svefnherbergi: Harðparket á gólfi. Rúmgóður hvítur fataskápur.
Baðherbergi: Flísalagt í hólf og gólf. Inngöngusturta með glerþili. Hvít innrétting með handlaug. Tengi fyrir þvottavél eru á baðherbergi. Handklæðaofn. Gluggi er í rýminu.
Urðarbrunnur 50 er einstaklega falleg og vönduð íbúð í fjórbýlishúsi. Vandaðar innréttingar eru í íbúðinni og allur frágangur til fyrirmyndar. Íþróttasvæði Fram er i næsta nágrenni og góð sundlaug.
Allar nánari upplýsingar veitir: Dagbjartur Willardsson lgf hjá RE/MAX í s: 861-7507 eða á daddi@remax.is
- Ég býð upp á frítt söluverðmat á þinni eign og veiti góða og lipra þjónustu. -
Gjöld sem kaupandi þarf að greiða vegna kaupanna: 1. Stimpilgjald af kaupsamningi - 0,8% af heildarfasteignamati hjá einstaklingum. Sé um fyrstu kaup að ræða er stimpilgjald af kaupsamningi 0,4% af heildarfasteignamati. 2. Stimpilgjald af kaupsamningi - 1,6% af heildarfasteignamati hjá lögaðilum. 3. Þinglýsingargjald af kaupsamningi, veðskuldabréfi, veðleyfi og fl. 2.700 kr. af hverju skjali. 4. Lántökugjald lánastofnunar - breytilegt, sjá gjaldskrá á heimasíðum lánastofnana. 5. Umsýslugjald til fasteignasölu 69.900 kr. m.vsk.
Í lögum um fasteignakaup nr. 40/2002 er kveðið á um ríka skoðunarskyldu kaupenda á fasteignum. Vill RE/MAX því skora á væntanlega kaupendur að kynna sér vel ástand fasteigna fyrir kauptilboðsgerð og leita til þar til bærra sérfræðinga um nánari skoðun.
Íbúðin er skráð hjá þjóðskrá 71,1 fm. Skráð byggingarár hússins er 2021. Húsið er 2 hæða og eru fjórar íbúðir í húsinu og er íbúðin á jarðhæð hússins. Íbúðin er með stóru svefnherbergi með fataskáp. Stofa-eldhús-borðstofa er rúmgott með útgengi út á sólpall. Fallegt baðherbergi með inngöngusturtu.
Nánari lýsing:
Forstofa: Harðparket á gólfi. Rúmgóðir fataskápar
Stofa/borðstofa/eldhús: Harðparket á gólfi. Bakstursofn í vinnuhæð. Innbygður kæli/frystiskápur sem og uppþvottavél. Hvít/svört eldhúsinnrétting. Spansuðuhelluborð.
Pallur: Útgengt á góðan pall með skjólveggum.
Svefnherbergi: Harðparket á gólfi. Rúmgóður hvítur fataskápur.
Baðherbergi: Flísalagt í hólf og gólf. Inngöngusturta með glerþili. Hvít innrétting með handlaug. Tengi fyrir þvottavél eru á baðherbergi. Handklæðaofn. Gluggi er í rýminu.
Urðarbrunnur 50 er einstaklega falleg og vönduð íbúð í fjórbýlishúsi. Vandaðar innréttingar eru í íbúðinni og allur frágangur til fyrirmyndar. Íþróttasvæði Fram er i næsta nágrenni og góð sundlaug.
Allar nánari upplýsingar veitir: Dagbjartur Willardsson lgf hjá RE/MAX í s: 861-7507 eða á daddi@remax.is
- Ég býð upp á frítt söluverðmat á þinni eign og veiti góða og lipra þjónustu. -
Gjöld sem kaupandi þarf að greiða vegna kaupanna: 1. Stimpilgjald af kaupsamningi - 0,8% af heildarfasteignamati hjá einstaklingum. Sé um fyrstu kaup að ræða er stimpilgjald af kaupsamningi 0,4% af heildarfasteignamati. 2. Stimpilgjald af kaupsamningi - 1,6% af heildarfasteignamati hjá lögaðilum. 3. Þinglýsingargjald af kaupsamningi, veðskuldabréfi, veðleyfi og fl. 2.700 kr. af hverju skjali. 4. Lántökugjald lánastofnunar - breytilegt, sjá gjaldskrá á heimasíðum lánastofnana. 5. Umsýslugjald til fasteignasölu 69.900 kr. m.vsk.
Í lögum um fasteignakaup nr. 40/2002 er kveðið á um ríka skoðunarskyldu kaupenda á fasteignum. Vill RE/MAX því skora á væntanlega kaupendur að kynna sér vel ástand fasteigna fyrir kauptilboðsgerð og leita til þar til bærra sérfræðinga um nánari skoðun.