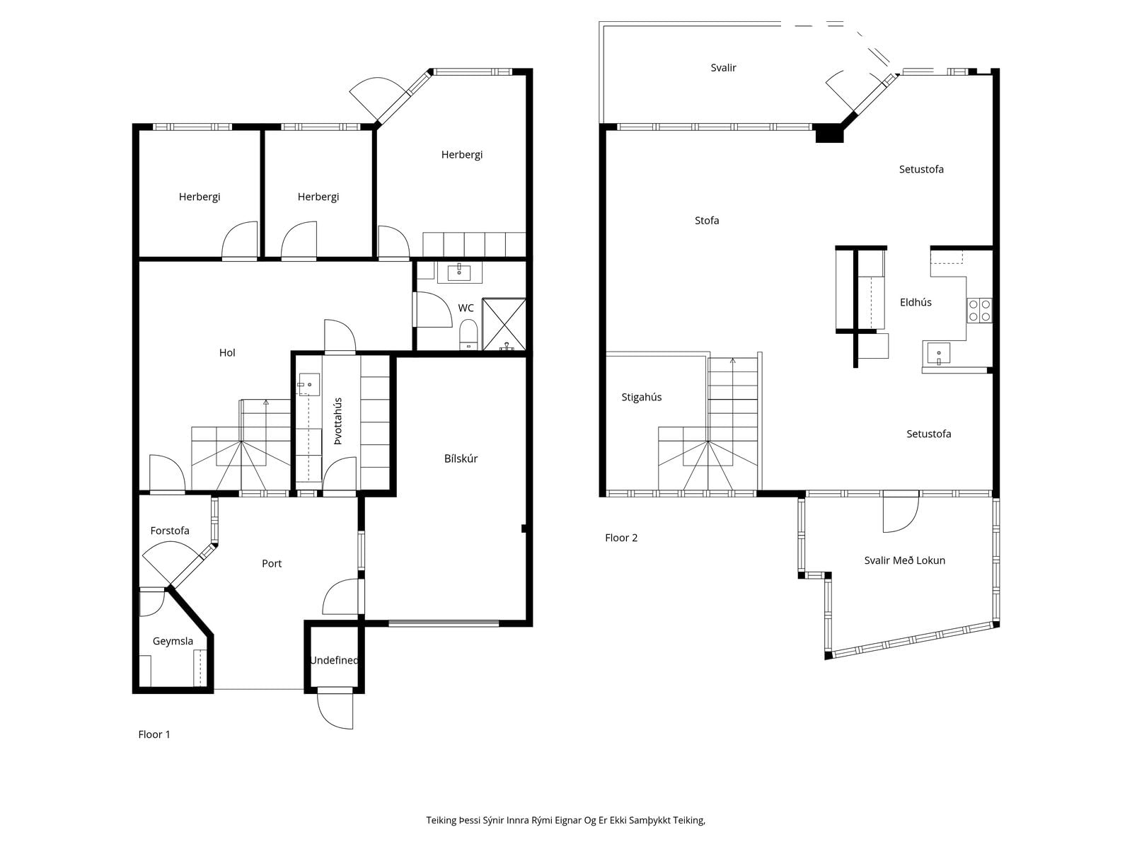
Eignin er skráð 193,4 fm steypt raðhús og er byggingarár 1978. Húsið er skráð í heildina 193,4 er skráður 172,2 fm og bílskúr 21,2 fm. Einnig Fallegt hús í enda botnlangagötu. Gott er að sjá skipulag hússins á teikningu sem er staðsett þar sem ljósmyndirnar eru af eigninni.
FÁÐU SENT SÖLUYFIRLIT YFIR EIGNINA HÉR.
Nánari lýsing:
Aðkoma: Keyrt er inn í lítinn botnlanga frá Hraunbrúninni. Um er að ræða miðju-raðhús sem horfir yfir á Víðistaðaskólann. Fyrir framan húsið er steypt bílaplan með snjóbræðslu sem rúmar tvo bíla og þar á móti eru góð gestastæði. Gengið er inn í húsið inn á neðri hæð þess.
JARÐHÆÐ: Forstofa: Komið er inn í forstofu með nýlegum fallegum gráum flísum á gólfI. Inn af forstofunni er fataherbergi fyrir rýmið.
Sjónvarpshol: Sjónvarpshol er fyrir miðju hæðarinnar þegar komið er inn úr forstofunni. Fallegt harðparket er á gólfi á holinu.
Baðherbergi: Baðherbergið er endurnýjað að mestu með hvítum flísum á gólfi og á veggjum. Stór sturta er beint á gólf með glervegg. Hvít skúffueining er undir vaski og skápur á vegg við hliðina á speglinum. Spegillinn er stór með góðri lýsingu.
Svefnherbergi: Svefnherbergin eru þrjú öll með nýlegu fallegu harðparketi á gólfi. Góðir nýlegir skápar eru í tveimur af herbergjunum. Frá hjónaherberginu er gengið út í garðinn á bak við húsið. Bæði er timburverönd sem nýtur mikils skjóls af húsinu og einnig er gras og tré.
EFRI HÆÐ: Gengið er upp steyptan fallegan stiga með bjálkahandriði upp á efri hæð hússins. Setustofa: Þegar komið er upp stigann er komið upp í stórt opið rými með mikilli lofthæð. Setustofan er sérlega rúmgóð og opin að hluta yfir í borðstofuna og borðkrókinn.
Borðstofa: Borðstofan er rúmgóð við annan enda eldhússins. Útgengt er út á suðursvalir sem snúa upp í hverfið.
Eldhús: Eldhúsið er opið yfir í borðstofuna og að borðkróknum að hluta. Veggir sem stúka af eldhúsið eru allir léttir og ganga ekki alveg upp að lofti og því auðvelt að opna. Innrétting er í U með efri og neðri skápum að hluta, einnig er innrétting á einn auka vegg og því gott skápapláss og vinnupláss í rýminu. Innrétting er hvít og hvítar flísar eru á vegg fyrir ofan neðri skápana.
Borðkrókur: Fyrir framan eldhúsið er borðkrókur og skilur á milli með eyju sem tengist við innréttinguna.
Sólstofa: Stór sólstofa er út frá borðkróknum og stofunni. Sólstofan er um 15-17 fm er til viðbótar við skráða fermetra hússins og var byggð yfir stórar svalir sem liggja yfir bílskúrnum að hluta. Ofn er í rýminu og nýtist það því algjörlega sem viðbótar stofa.
Bílskúr: Bílskúrinn er 21,2 fm með ofni, heitu og köldu vatni og sjálfvirkum hurðaopnara.
Lóð: Steypt bílaplan með hitalögnum fyrir framan hús og bílskúr. Baklóðin snýr til suðurs og er með timburverönd og hluti hennar er tyrft grasflöt.
Hraunbrún 33 er fallegt og sérlega vel viðhaldið raðhús á frábærum stað í Hafnarfirði stein snar frá Víðistaðaskóla og Víðstaðatúni. Núverandi eigendur eru aðeins aðrir eigendur hússins. Í húsinu er 3 góð svefnherbergi, stór stofa + borðstofa og falleg sólstofa sem byggð var yfir stórar svalir sem snúa yfir í áttina að hrauninu og Víðistaðaskóla. Skipting hæðanna er sérlega góð þar sem allar vistarverur (herbergi, baðherbergi og þvottaherbergi ) eru á jarðhæðinni og á efri hæðinni er stórt alrými sem rúmar stóra setustofu, borðstofu, eldhús, borðkrók og sólstofu. Stutt er í alla helstu þjónustu og verslanir bæði við Strandgötuna og upp við Reykjarvíkurveginn og nágrenni hans. Þak var endurnýjað nýlega og þá var skipt um bæði járn og pappa.
Allar nánari upplýsingar veita Dagbjartur Willardsson lgf. í síma 861-7507 eða daddi@remax.is.
Ég býð upp á frítt söluverðmat á þinni eign og veiti góða og lipra þjónustu.
Gjöld sem kaupandi þarf að standa straum af vegna kaupanna: 1. Stimpilgjald af kaupsamningi - 0,8% af heildarfasteignamati hjá einstaklingum. (Sé um fyrstu kaup að ræða er stimpilgjald af kaupsamningi 0,4%) 2. Stimpilgjald af kaupsamningi - 1,6% af heildarfasteignamati hjá lögaðilum. 3. Þinglýsingagjald af kaupsamningi, veðskuldabréfi, veðleyfi o.fl. 2.700 kr. af hverju skjali. 4. Lántökugjald lánastofnunar - sjá heimasíður lánastofnanna. 5. Umsýslugjald til fasteignasölu 69.900. kr. m.vsk.
Í lögum um fasteignakaup nr. 40/2002 er kveðið á um ríka skoðunarskyldu kaupenda á fasteignum. Vill RE/MAX því skora á væntanlega kaupendur að kynna sér vel ástand fasteigna fyrir kauptilboðsgerð og leita til þar til bærra sérfræðinga um nánari skoðun.
Eignin er skráð 193,4 fm steypt raðhús og er byggingarár 1978. Húsið er skráð í heildina 193,4 er skráður 172,2 fm og bílskúr 21,2 fm. Einnig Fallegt hús í enda botnlangagötu. Gott er að sjá skipulag hússins á teikningu sem er staðsett þar sem ljósmyndirnar eru af eigninni.
FÁÐU SENT SÖLUYFIRLIT YFIR EIGNINA HÉR.
Nánari lýsing:
Aðkoma: Keyrt er inn í lítinn botnlanga frá Hraunbrúninni. Um er að ræða miðju-raðhús sem horfir yfir á Víðistaðaskólann. Fyrir framan húsið er steypt bílaplan með snjóbræðslu sem rúmar tvo bíla og þar á móti eru góð gestastæði. Gengið er inn í húsið inn á neðri hæð þess.
JARÐHÆÐ: Forstofa: Komið er inn í forstofu með nýlegum fallegum gráum flísum á gólfI. Inn af forstofunni er fataherbergi fyrir rýmið.
Sjónvarpshol: Sjónvarpshol er fyrir miðju hæðarinnar þegar komið er inn úr forstofunni. Fallegt harðparket er á gólfi á holinu.
Baðherbergi: Baðherbergið er endurnýjað að mestu með hvítum flísum á gólfi og á veggjum. Stór sturta er beint á gólf með glervegg. Hvít skúffueining er undir vaski og skápur á vegg við hliðina á speglinum. Spegillinn er stór með góðri lýsingu.
Svefnherbergi: Svefnherbergin eru þrjú öll með nýlegu fallegu harðparketi á gólfi. Góðir nýlegir skápar eru í tveimur af herbergjunum. Frá hjónaherberginu er gengið út í garðinn á bak við húsið. Bæði er timburverönd sem nýtur mikils skjóls af húsinu og einnig er gras og tré.
EFRI HÆÐ: Gengið er upp steyptan fallegan stiga með bjálkahandriði upp á efri hæð hússins. Setustofa: Þegar komið er upp stigann er komið upp í stórt opið rými með mikilli lofthæð. Setustofan er sérlega rúmgóð og opin að hluta yfir í borðstofuna og borðkrókinn.
Borðstofa: Borðstofan er rúmgóð við annan enda eldhússins. Útgengt er út á suðursvalir sem snúa upp í hverfið.
Eldhús: Eldhúsið er opið yfir í borðstofuna og að borðkróknum að hluta. Veggir sem stúka af eldhúsið eru allir léttir og ganga ekki alveg upp að lofti og því auðvelt að opna. Innrétting er í U með efri og neðri skápum að hluta, einnig er innrétting á einn auka vegg og því gott skápapláss og vinnupláss í rýminu. Innrétting er hvít og hvítar flísar eru á vegg fyrir ofan neðri skápana.
Borðkrókur: Fyrir framan eldhúsið er borðkrókur og skilur á milli með eyju sem tengist við innréttinguna.
Sólstofa: Stór sólstofa er út frá borðkróknum og stofunni. Sólstofan er um 15-17 fm er til viðbótar við skráða fermetra hússins og var byggð yfir stórar svalir sem liggja yfir bílskúrnum að hluta. Ofn er í rýminu og nýtist það því algjörlega sem viðbótar stofa.
Bílskúr: Bílskúrinn er 21,2 fm með ofni, heitu og köldu vatni og sjálfvirkum hurðaopnara.
Lóð: Steypt bílaplan með hitalögnum fyrir framan hús og bílskúr. Baklóðin snýr til suðurs og er með timburverönd og hluti hennar er tyrft grasflöt.
Hraunbrún 33 er fallegt og sérlega vel viðhaldið raðhús á frábærum stað í Hafnarfirði stein snar frá Víðistaðaskóla og Víðstaðatúni. Núverandi eigendur eru aðeins aðrir eigendur hússins. Í húsinu er 3 góð svefnherbergi, stór stofa + borðstofa og falleg sólstofa sem byggð var yfir stórar svalir sem snúa yfir í áttina að hrauninu og Víðistaðaskóla. Skipting hæðanna er sérlega góð þar sem allar vistarverur (herbergi, baðherbergi og þvottaherbergi ) eru á jarðhæðinni og á efri hæðinni er stórt alrými sem rúmar stóra setustofu, borðstofu, eldhús, borðkrók og sólstofu. Stutt er í alla helstu þjónustu og verslanir bæði við Strandgötuna og upp við Reykjarvíkurveginn og nágrenni hans. Þak var endurnýjað nýlega og þá var skipt um bæði járn og pappa.
Allar nánari upplýsingar veita Dagbjartur Willardsson lgf. í síma 861-7507 eða daddi@remax.is.
Ég býð upp á frítt söluverðmat á þinni eign og veiti góða og lipra þjónustu.
Gjöld sem kaupandi þarf að standa straum af vegna kaupanna: 1. Stimpilgjald af kaupsamningi - 0,8% af heildarfasteignamati hjá einstaklingum. (Sé um fyrstu kaup að ræða er stimpilgjald af kaupsamningi 0,4%) 2. Stimpilgjald af kaupsamningi - 1,6% af heildarfasteignamati hjá lögaðilum. 3. Þinglýsingagjald af kaupsamningi, veðskuldabréfi, veðleyfi o.fl. 2.700 kr. af hverju skjali. 4. Lántökugjald lánastofnunar - sjá heimasíður lánastofnanna. 5. Umsýslugjald til fasteignasölu 69.900. kr. m.vsk.
Í lögum um fasteignakaup nr. 40/2002 er kveðið á um ríka skoðunarskyldu kaupenda á fasteignum. Vill RE/MAX því skora á væntanlega kaupendur að kynna sér vel ástand fasteigna fyrir kauptilboðsgerð og leita til þar til bærra sérfræðinga um nánari skoðun.