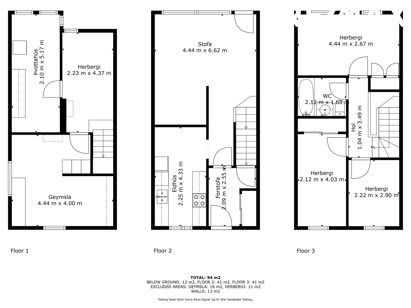
Um er að ræða raðhús á þremur hæðum og er hver hæð skráð 43,2 fm. Húsið er byggt árið 1961 og er steinsteypt. Heildarlóðin fyrir raðhúsalengjuna Ásgarð 37-53 er 2.186 fm.
FÁÐU SENT SÖLUYIRLIT YFIR EIGNINA HÉR.
Nánari lýsing: Aðkoma: Hellulagt að inngangi í húsið og skjólveggir að framan.
MIÐHÆÐ: Forstofa, eldhús og stofa. Útgengt er úr stofu á baklóðina sem snýr til suðurs.
EFSTA HÆÐ: Þrjú svefnherbergi og baðherbergi.
KJALLARI: Í kjallara er herbergi, þvottahús og stór geymsla.
Lóð: Baklóð in snýr til suðurs og þar er tyrft grasflöt og hellur. Skjólveggir afmarka baklóðina.
Ásgarður 43 er gott raðhús í vinsælu hverfi 108 í Reykjavík. Eignin er að miklu leiti í upprunalegu ástandi. Eign sem býður upp á mikla möguleika.
- Ég býð upp á frítt söluverðmat á þinni eign og veiti góða og lipra þjónustu. -
Allar nánari upplýsingar veitir: Dagbjartur Willardsson lgf hjá RE/MAX í s: 861-7507 eða á daddi@remax.is
Gjöld sem kaupandi þarf að greiða vegna kaupanna: 1. Stimpilgjald af kaupsamningi - 0,8% af heildarfasteignamati hjá einstaklingum. Sé um fyrstu kaup að ræða er stimpilgjald af kaupsamningi 0,4% af heildarfasteignamati. 2. Stimpilgjald af kaupsamningi - 1,6% af heildarfasteignamati hjá lögaðilum. 3. Þinglýsingargjald af kaupsamningi, veðskuldabréfi, veðleyfi og fl. 2.700 kr. af hverju skjali. 4. Lántökugjald lánastofnunar - breytilegt, sjá gjaldskrá á heimasíðum lánastofnana. 5. Umsýslugjald til fasteignasölu 69.900 kr. m.vsk.
Í lögum um fasteignakaup nr. 40/2002 er kveðið á um ríka skoðunarskyldu kaupenda á fasteignum. Vill RE/MAX því skora á væntanlega kaupendur að kynna sér vel ástand fasteigna fyrir kauptilboðsgerð og leita til þar til bærra sérfræðinga um nánari skoðun.
Um er að ræða raðhús á þremur hæðum og er hver hæð skráð 43,2 fm. Húsið er byggt árið 1961 og er steinsteypt. Heildarlóðin fyrir raðhúsalengjuna Ásgarð 37-53 er 2.186 fm.
FÁÐU SENT SÖLUYIRLIT YFIR EIGNINA HÉR.
Nánari lýsing: Aðkoma: Hellulagt að inngangi í húsið og skjólveggir að framan.
MIÐHÆÐ: Forstofa, eldhús og stofa. Útgengt er úr stofu á baklóðina sem snýr til suðurs.
EFSTA HÆÐ: Þrjú svefnherbergi og baðherbergi.
KJALLARI: Í kjallara er herbergi, þvottahús og stór geymsla.
Lóð: Baklóð in snýr til suðurs og þar er tyrft grasflöt og hellur. Skjólveggir afmarka baklóðina.
Ásgarður 43 er gott raðhús í vinsælu hverfi 108 í Reykjavík. Eignin er að miklu leiti í upprunalegu ástandi. Eign sem býður upp á mikla möguleika.
- Ég býð upp á frítt söluverðmat á þinni eign og veiti góða og lipra þjónustu. -
Allar nánari upplýsingar veitir: Dagbjartur Willardsson lgf hjá RE/MAX í s: 861-7507 eða á daddi@remax.is
Gjöld sem kaupandi þarf að greiða vegna kaupanna: 1. Stimpilgjald af kaupsamningi - 0,8% af heildarfasteignamati hjá einstaklingum. Sé um fyrstu kaup að ræða er stimpilgjald af kaupsamningi 0,4% af heildarfasteignamati. 2. Stimpilgjald af kaupsamningi - 1,6% af heildarfasteignamati hjá lögaðilum. 3. Þinglýsingargjald af kaupsamningi, veðskuldabréfi, veðleyfi og fl. 2.700 kr. af hverju skjali. 4. Lántökugjald lánastofnunar - breytilegt, sjá gjaldskrá á heimasíðum lánastofnana. 5. Umsýslugjald til fasteignasölu 69.900 kr. m.vsk.
Í lögum um fasteignakaup nr. 40/2002 er kveðið á um ríka skoðunarskyldu kaupenda á fasteignum. Vill RE/MAX því skora á væntanlega kaupendur að kynna sér vel ástand fasteigna fyrir kauptilboðsgerð og leita til þar til bærra sérfræðinga um nánari skoðun.