RE/MAX Ísland logo
Skráð 22. nóv. 2025
Söluyfirlit

Spóahólar 4

FjölbýlishúsHöfuðborgarsvæðið/Reykjavík/Breiðholt-111
89 m2
3 Herb.
2 Svefnh.
1 Baðherb.
Verð
59.900.000 kr.
Fermetraverð
673.034 kr./m2
Fasteignamat
53.400.000 kr.
Brunabótamat
44.800.000 kr.
RE/MAX
Mynd af Guðbjörg Helga Jóhannesdóttir
Guðbjörg Helga Jóhannesdóttir
Löggiltur fasteignasali / Viðskiptafræðingur
Byggt 1978
Þvottahús
Garður
Gæludýr leyfð
Aðgengi fatl.
Tveir inngangar
Fasteignanúmer
2049847
Húsgerð
Fjölbýlishús
Byggingarefni
Steypt
Númer hæðar
1
Hæðir í íbúð
1
Númer íbúðar
1
Vatnslagnir
Ekki vitað
Raflagnir
Ekki vitað
Frárennslislagnir
Ekki vitað-líklega upprunalegar
Gluggar / Gler
Endurnýjaðir að hluta í húsinu/allir í íbúð
Þak
Endurnýjað járn 2019
Lóðarréttindi
Leigulóð
Svalir
Viðarverönd vestur
Upphitun
Hitaveita
Inngangur
Tveir inngangar
Matsstig
7 - Fullgerð bygging
Fyrirhugaðar framkvæmdir
Samþykkt var á aðalfundi að láta þrífa álklæðninguna. Er ekki viss að sé lokið. Gert síðast 2021. (flokkast líklega meira undir almennan rekstur en framkvæmdir)
Ósamþykktar framkvæmdir á umræðustigi: Að fegra og mála stigahús.
Gallar
-Minni þrýstingur er á vatni í eldhúsi en inni á baðherbergi. Það kom stífla sem var löguð og þrýstingur í öðrum íbúðum er fínn eftir losun stíflu. Núverandi eigendur endurnýjuðu blöndunartæki í framhaldi.
-Dyrasími. Hægt að opna útidyrahurð en ekki tala í hann, símtólið virkar ekki.
 
**EIGNIN ER SELD OG ER Í FJÁRMÖGNUNARFERLI**
MIKILL ÁHUGI VAR Á EIGNINNI OG VIÐ MEÐ 15 KAUPENDUR Á SKRÁ, SVO EKKI HIKA VIÐ AÐ HAFA SAMBAND EF ÞÚ ERT MEÐ SVIPAÐA ÍBÚÐ OG Í SÖLUHUGLEIÐINGUM. Hafðu þá samband við okkur:
Guðbjörg Helga
löggiltur fasteignasali og viðskiptafræðingur s. 897 7712 og tölvunetfang: gudbjorg@remax.is
Gylfi Jens löggiltur fasteignasali og lögmaður s. 822 5124 og tölvunetfang:
gylfi@remax.is

Guðbjörg Helga og Gylfi Jens löggiltir fasteignasalar hjá RE/MAX kynna: Spóahólar 4, 111 Reykjavík.

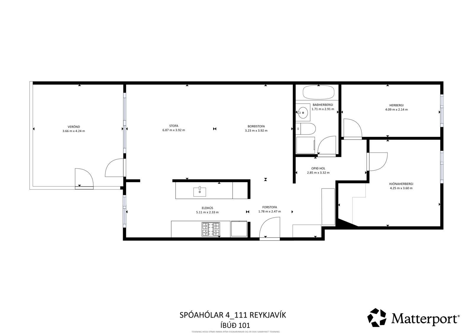
Björt og vel skipulögð 3ja herbergja íbúð á jarðhæð með nýlegri skjólgóðri viðarverönd til vesturs. Þetta er eina íbúðin á hæðinni.Uppgefin heildarstærð hjá HMS er 83,3 m2 en geymslan virðist vera utan skráningar en í eignaskiptasamningi sem er með uppgefna stærð 89 fm, og geymslan þá 5,7 fm. Húsið er álklætt á suður- og austurhlið, þakklæðning endurnýjuð, sem og svalir endurnýjaðar og allir gluggar og svalahurð íbúðar. Íbúðin hefur verið þónokkuð uppgerð, m.a. eldhús, gólfefni og skápar auk þess innréttingar á baðherbergi. Innra skipulagi hefur verið lítillega breytt frá samþykktum teikningum með betri nýtingu í huga.  Næg bílastæði eru á lóðinni við annan innganginn og framan við hinn er gott gróið leiksvæði. Út frá stofu er ný viðarverönd og þar fyrir framan grasblettur með trjágróðri í sameign. Skemmtileg eign með góðri nýtingu fermetra í barnvænu hverfi. Í nærumhverfi er Hólagarður verslunarkjarni, leikskóli, Hólabrekkuskóli og Fjölbrautaskólinn í Breiðholti auk þess sem stutt ganga er í náttúruparadísina í Elliðaárdal. Fasteignamat 2026 verður 58.700.000 kr.

     **SÆKTU SJÁLFVIRKT SÖLUYFIRLIT HÉR:**
     **SKOÐAÐU EIGNINA BETUR Í ÞRÍVÍDD MEÐ /ÁN HÚSGAGNA MEÐ ÞVÍ AÐ SMELLA HÉR**

NÁNARI LÝSING:
Harðparket er á gólfum nema forstofa, baðherbergi og eldhús eru flísalögð.
Forstofa/ Hol: Hvítir rúmgóðir skápar. Veggur var færður og skipulagi herbergis og hols breytt svo rýmin nýtast bæði betur í dag. 
Stofa og borðstofa Út frá stofu er hurð út á skjólgóða vestur sólverönd, þaðan er gengið út í sameiginlegan garð. Rúllugardínur
Baðherbergi: Flísar á votsvæði, aðrir veggir málaðir. Baðkar með sturtuaðstöðu, gólffest salerni,  hvít skúffuinnrétting með ljúflokum undir handlaug og speglaskápur á vegg, Innrétting fyrir þvottavél og þurrkara ásamt tengi fyrir tækin. 
Eldhúsið Hvít innrétting með efri og neðri skápum. Borðplata er dökkgrá og eru veggflísar í stíl á milli efri og neðri skápa. Tengi fyrir uppþvottavél. span helluborð, veggháfur, bakaraofn undir borðplötu,  rúmgóður borðkrókur við gluggann. Rúllugardína. 
Herbergi 1: Rúmgott með hvítum skápum. Filma í hluta glugga, rúllugardína. Gardínustöng.
Herbergi 2: Filma í hluta glugga. Rúllugardína og gardínustöng
Sérgeymsla: Er á hæðinni á geymslugangi.Hillur og málað gólf. Líklega utan uppgefinna fm. Innanmál er 
Sameign: Stigahús er snyrtilegt með flísum á jarðhæð og teppi á stiga. Hjóla- og vagnageymsla ásamt þurrkherbergi. Bílastæði eru sameiginleg og ómerkt. Næg bílastæði. 

Framkvæmdasaga á tíma núverandi eigenda:
     Sameign:
2024:
Þak-Snjógildrur settar á það. Þéttað við lúgu á þaki, eftir leka þar.
2021-2023: Norður- og vesturhlið (bakhlið) teknar að utan, svalir brotnar niður/lagfærðar eftir þörfum, gluggar og svalahurðir endurnýjað eftir þörfum á húsinu, Norðurhlið klædd, vesturhlið múrviðgerð og máluð. 
2023: Svalahurð, stofugluggi og eldhúsgluggi íbúðarinnar endurnýjaðir í ofangreindum framkvæmdum.
     Íbúð:
2025:
Nýr hitaveituofní eldhúsi.
2024: Nýr hitaveituofn á baði.
2024: Viðarverönd byggð
2024: Efri skápar með glerhurðum bætt við innréttingu í eldhúsi
2024:  Nýtt blöndunartæki í eldhúsi. 
2023: Einn veggur fjarlægður og annar reistur (herbergi 1 stækkað smá og forstofa minnkuð á móti)
2023: Nýir skápar í herbergi 1 og forstofu.
2022: Endurnýjaðir allir rofar og innstungur (nema á 1 stað í herbergi 2)
2022: Skrautfilmur settar í glugga í svefnherbergjum og eldhúsi.
2022: Sólbekkur í eldhúsi endurnýjaður. 
2022: Tvær innihurðar endurnýjaðar  ( ekki hurðakarmar)

Framkvæmdir skv. eldri söluyfirlitum og af Facebook hópi húsfélags:
     Sameign
2020:
Þakklæðning endurnýjuð
2019: Austurhlið klædd með vandaðri viðhaldsléttri klæðningu (Bílastæðahliðin) 
2014: Útidyrahurð endurnýjuð og nýir gluggar á austurhlið (bílastæðahliðin)
     íbúð:
2019: Eldhúsinnrétting og eldhústæki endurnýjuð. 

Nánari upplýsingar og bókanir sýninga:
Guðbjörg Helga löggiltur fasteignasali og viðskiptafræðingur s. 897 7712 og tölvunetfang: gudbjorg@remax.is
Gylfi Jens löggiltur fasteignasali og lögmaður s. 822 5124 og tölvunetfang: gylfi@remax.is
 
Byggt 1978
0.6 m2
Fasteignanúmer
2049847
Byggingarefni
Steypa
Matsstig
7 - Fullgerð bygging
Lýsing
Geymsla er utan skráða fm hjá HMS en getið í eignaskiptasamningi

Sambærilegar eignir

Opna eign
Image
Opna eign
Orrahólar 7
111 Reykjavík
72.8 m2
Fjölbýlishús með lyftu
211
795 þ.kr./m2
57.900.000 kr.
Opna eign
Image
Opna eign
Gerðhamrar 5
112 Reykjavík
69 m2
Fjölbýlishús með sérinngangi
311
868 þ.kr./m2
59.900.000 kr.
Opna eign
3D Sýn
Image
Opna eign
Barmahlíð 41
105 Reykjavík
71.3 m2
Fjölbýlishús með sameiginlegum inngangi
111
840 þ.kr./m2
59.900.000 kr.
Opna eign
Image
Opna eign
Víkurás 3
110 Reykjavík
79.4 m2
Fjölbýlishús með sameiginlegum inngangi
211
742 þ.kr./m2
58.900.000 kr.
RE/MAX Ísland logo
Við vinnum fyrir þig
Hafðu samband
skrifstofa@remax.isS: 4777777
Skeifunni 17
kt. 480506-0810
Hlekkir
Samfélagsmiðlar
© Copyright 2025 - RE/MAX Ísland
Knúið af
Fasteignaleitin