RE/MAX Ísland logo
Skráð 19. nóv. 2025
Söluyfirlit

Grásteinsmýri 1 íbúð 101

FjölbýlishúsHöfuðborgarsvæðið/Garðabær-225
118.2 m2
4 Herb.
3 Svefnh.
1 Baðherb.
Verð
105.200.000 kr.
Fermetraverð
890.017 kr./m2
Fasteignamat
6.890.000 kr.
RE/MAX
Mynd af Garðar Hólm
Garðar Hólm
Löggiltur fasteignasali
Þvottahús
Garður
Sérinngangur
Fasteignanúmer
2539976
Húsgerð
Fjölbýlishús
Byggingarefni
Steypt
Númer hæðar
01
Númer íbúðar
01
Vatnslagnir
Nýjar
Raflagnir
Nýjar
Frárennslislagnir
Nýjar
Gluggar / Gler
Tvöfalt gler
Þak
Nýtt
Lóðarréttindi
Leigulóð
Upphitun
Hitaveita
Inngangur
Sérinngangur
Matsstig
2 - Botnplata
Sýnum daglega!!!
RE/MAX, Garðar Hólm lgf., Guðlaug Jóna lgf. og Bjarný Björg lgf kynna: Nýjan íbúðaklasa á Álftanesi, 225 Garðabæ, við Grásteinsmýri 1-6. Byggingaraðili Öxar ehf. 
Uppbygging á 102 íbúðum í þremur lágreistum íbúðarkjörnum ásamt bílastæðahúsi undir einum kjarnanum.  Í heidina eru 153 bílastæði, 30 í bílageymslu og 123 á lóð.  Hönnun svæðisins einkennist af því að birta nái í allar íbúðir og andi vel um allt svæðið.

Kaupendur geta nýtt sér nýjan sjóð Öxar 20 sem styður kaupendur með því að fjárfesta með kaupanda allt að 20% af kaupverði.  Kynntu þér málið hér oxar20.is

Vel skipulagðar og rúmgóðar tveggja til fimm herbergja íbúðir með aukinni lofthæð. Með öllum íbúðum í húsunum fylgir stæði í bílageymslu, með sumum íbúðum fylgir svo auk þess annað sér merkt stæði utandyra. Allar íbúðir eru með hefðbundnar svalir eða verönd þar sem á við. Flestar íbúðir eru með sér þvottahús. 


Sjá má skilalýsingu, verðlista og nánari upplýsingar inn á heimasíðu verkefnisins: grasteinsmyri.is

Nánari upplýsingar veita Guðlaug Jóna lgf. í síma 661-2363 eða gulla@remax.is, Garðar Hólm lgf. í síma 899-8811 eða gardar@remax.is og Bjarný Björg lgf. í síma 694-2526 eða bjarny@remax.is

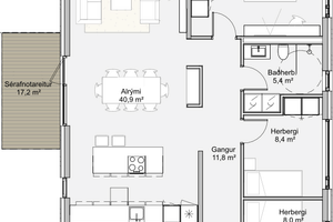
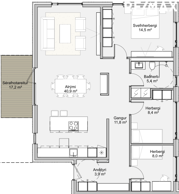
Íbúð 101 er glæsileg 4ra herbergja íbúð á 1. hæð með sérinngangi og stæði í bílakjallara. Samkvæmt Þjóðskrá Íslands er eignin 118,2 fm, þar af er geymsla í kjallara 8,7 fm. Útgengt á 17,2 fm sérafnotarétt.
 
Einstaklega vönduð og falleg 4ra herbergja íbúð, merkt: 101 (Hæð 1). Íbúðin er fullbúin án gólfefna að undanskildum votrýmum,  sem verða flísalögð. Sérstæði í bílageymslu fylgir með.  Húsið er úr staðsteypt, einangrað að utan og klætt með áli og timbri.  Allar innréttingar eru frá Axis og eldhústæki frá AEG.

Íbúð: 0101
Hæð: 1
Tegund: 4ra herbergja 
Stærð: 118,2 m² 
Geymsla: 8,7 m² 
Stæði í bílageymslu: Merkt B08


Nánari lýsing:
Forstofa: 
Með góðum fataskápum.
Eldhús: Falleg innrétting frá Axis með 80 cm helluborði með inngbyggðum gufugleypi, bakarofni, innbyggðum ísskáp og uppþvottavél. Eyja er í eldhúsi og er eldavélin þar.
Stofa/borðstofa: Í samliggjandi rými með eldhúsi. Opið og bjart rými. Útgengt út á 17,2 fm sérafnotarétt.
Hjónaherbergi: Rúmgott með góðum fataskápum.
Herbergi II og III: Rúmgóð með góðum fataskápum. 
Baðherbergi: Flísar á gólfi og að hluta til veggjum, upphengt salerni, sturta með glerskilrúmi, innrétting undir og við handlaug, handklæðaofn.
Þvottahús: Innrétting fyrir þvottavél og þurrkara með skúffum undir og skápum yfir vélum.  Flísar á gólfum.
Geymsla: Er í sameign í kjallara og er 8,7 fm.
Sameign: Í sameign í kjallara er hjóla- og vagnageymsla.
Bílastæði: Bílastæði í lokuðum bílakjallara merk B08.

Helstu eiginleikar:
  • Gólfsíðir gluggar við svalir.
  • Sérmerkt stæði í bílageymslu.
  • Mikið skápapláss.
  • Innréttingar frá Axis.
  • Aukin lofthæð.

Húsið:
Grásteinsmýri 1-6 er glæsilegt og vandað fjölbýlishús byggt af Öxar ehf. 
Húsið er á 3 hæðum auk bílakjallara, alls 102 íbúðir. Húsið er gert staðsteypt og klætt að utan. Gluggar eru álklæddir viðargluggar með tvöföldu gleri. 

*Myndirnar sem birtast á auglýsingu íbúðarinnar eru ekki endilega myndir af íbúðinni sjálfri heldur einungis til þess að gefa sýn á útlit eignanna þegar þær eru tilbúnar.
 
Kaupendur hafa verið upplýstir um að lóðin verður byggingasvæði í einhvern tíma eftir að eignir kunna að vera afhentar og að lokaúttekt kannað tefjast þangað til öll lóðin og mannvirki innan lóðar eru fullkláruð. Röskun getur orðið á stæðum í bílgeymslu og gætu kaupendur þurft að nota annað stæði en það sem þinglýst er á þeirra eign á meðan enn er unnið að því að klára heildareign og lóð. Seljandi mun ábyrgjast lokaúttekt á eigninni en afsal kann að fara fram áður en lokaúttekt á eigninni/heildareigninni fæst.

Nánari upplýsingar veita:
Garðar Hólm löggiltur fasteignasali í síma 899-8811 / gardar@remax.is
Guðlaug Jóna löggiltur fasteignasali í síma 661-2363 / gulla@remax.is
Bjarný Björg löggiltur fasteignasali í síma 694-2526 / bjarny@remax.is


Gjöld sem kaupandi þarf að standa straum af vegna kaupanna:
1.  Stimpilgjald af kaupsamningi 0,8%, ( 0,4% ef um fyrstu kaup er að ræða ) og 1.6% (ef um lögaðila er að ræða) af heildar fasteignamati.
2.  Þinglýsingargjald af kaupsamningi, veðskuldabréfi, mögulegu veðleyfi o.fl. - kr. 2.700 af hverju skjali.
3.  Lántökugjald lánastofnunar -  Nánari upplýsingar á heimasíðum lánastofnana.
4. Umsýslugjald til fasteignasölu kr. 69.900.-
 
 
Fasteignanúmer
2539976
Byggingarefni
Steypt
Númer hæðar
B0
Númer eignar
8
Húsmat
0 kr.
Lóðarmat
0 kr.
Brunabótamat
0 kr.
Matsstig
2 - Botnplata

Sambærilegar eignir

Opna eign
Image
Opna eign
Grásteinsmýri 1 íbúð 106
225 Garðabær
121.5 m2
Fjölbýlishús með sérinngangi
312
905 þ.kr./m2
109.900.000 kr.
Opna eign
Image
Opna eign
Grásteinsmýri 2 306
225 Garðabær
124.9 m2
Fjölbýlishús
413
904 þ.kr./m2
112.900.000 kr.
Opna eign
Image
Opna eign
Grásteinsmýri 2 - íbúð 305
225 Garðabær
120.4 m2
Fjölbýlishús
413
880 þ.kr./m2
106.000.000 kr.
Opna eign
Image
Opna eign
Grásteinsmýri 2 - íbúð 212
225 Garðabær
123.9 m2
Fjölbýlishús
43
895 þ.kr./m2
110.900.000 kr.
RE/MAX Ísland logo
Við vinnum fyrir þig
Hafðu samband
skrifstofa@remax.isS: 4777777
Skeifunni 17
kt. 480506-0810
Hlekkir
Samfélagsmiðlar
© Copyright 2026 - RE/MAX Ísland
Knúið af
Fasteignaleitin