RE/MAX Ísland logo
Skráð 19. nóv. 2025
Söluyfirlit

Grásteinsmýri 1 íbúð 103

Nýbygging • FjölbýlishúsHöfuðborgarsvæðið/Garðabær-225
126.4 m2
3 Herb.
2 Svefnh.
1 Baðherb.
Verð
105.900.000 kr.
Fermetraverð
837.816 kr./m2
Fasteignamat
7.210.000 kr.
RE/MAX
Mynd af Garðar Hólm
Garðar Hólm
Löggiltur fasteignasali
Þvottahús
Garður
Sérinngangur
Fasteignanúmer
2534670
Húsgerð
Fjölbýlishús
Byggingarefni
Steypt
Númer hæðar
1
Númer íbúðar
3
Vatnslagnir
Nýjar
Raflagnir
Nýjar
Frárennslislagnir
Nýjar
Gluggar / Gler
Tvöfalt gler
Þak
Nýtt
Lóðarréttindi
Leigulóð
Upphitun
Hitaveita
Inngangur
Sérinngangur
Matsstig
2 - Botnplata
Sýnum daglega!!!
RE/MAX, Garðar Hólm lgf., Guðlaug Jóna lgf. og Bjarný Björg lgf kynna: Nýjan íbúðaklasa á Álftanesi, 225 Garðabæ, við Grásteinsmýri 1-6. Byggingaraðili Öxar ehf. 
Uppbygging á 102 íbúðum í þremur lágreistum íbúðarkjörnum ásamt bílastæðahúsi undir einum kjarnanum.  Í heidina eru 153 bílastæði, 30 í bílageymslu og 123 á lóð.  Hönnun svæðisins einkennist af því að birta nái í allar íbúðir og andi vel um allt svæðið.

Kaupendur geta nýtt sér nýjan sjóð Öxar 20 sem styður kaupendur með því að fjárfesta með kaupanda allt að 20% af kaupverði.  Kynntu þér málið. 

Vel skipulagðar og rúmgóðar tveggja til fimm herbergja íbúðir með aukinni lofthæð. Með öllum íbúðum í húsunum fylgir stæði í bílageymslu, með sumum íbúðum fylgir svo auk þess annað sér merkt stæði utandyra. Allar íbúðir eru með hefðbundnar svalir eða verönd þar sem á við. Flestar íbúðir eru með sér þvottahús. 


Sjá má skilalýsingu, verðlista og nánari upplýsingar inn á heimasíðu verkefnisins: grasteinsmyri.is

Nánari upplýsingar veita Guðlaug Jóna lgf. í síma 661-2363 eða gulla@remax.is, Garðar Hólm lgf. í síma 899-8811 eða gardar@remax.is og Bjarný Björg lgf. í síma 694-2526 eða bjarny@remax.is

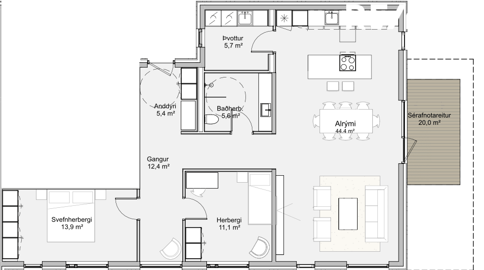
Íbúð 103 er glæsileg 3ja herbergja íbúð á 1. hæð með sérinngangi og stæði í bílakjallara. Samkvæmt Þjóðskrá Íslands er eignin 126,4 fm, þar af er geymsla í kjallara 10,3 fm. Útgengt á 20,0 fm sérafnotarétt.
 
Einstaklega vönduð og falleg 3ja herbergja íbúð, merkt: 103 (Hæð 1). Íbúðin er fullbúin án gólfefna að undanskildum votrýmum,  sem verða flísalögð. Sérstæði í bílageymslu fylgir með.  Húsið er úr staðsteypt, einangrað að utan og klætt með áli og timbri.  Allar innréttingar eru frá Axis og eldhústæki frá AEG.

Íbúð: 0103
Hæð: 1
Tegund: 3ja herbergja 
Stærð: 126,4 m² 
Geymsla: 10,3 m² 
Stæði í bílageymslu: Merkt B05


Nánari lýsing:
Forstofa: 
Með góðum fataskápum.
Eldhús: Falleg innrétting frá Axis með 80 cm helluborði með inngbyggðum gufugleypi, bakarofni, innbyggðum ísskáp og uppþvottavél.
Stofa/borðstofa: Í samliggjandi rými með eldhúsi. Opið og bjart rými. Útgengt út á 20,0 fm sérafnotarétt.
Hjónaherbergi: Rúmgott með góðum fataskápum.
Herbergi II: Rúmgóð með góðum fataskápum. 
Baðherbergi: Flísar á gólfi og að hluta til veggjum, upphengt salerni, sturta með glerskilrúmi, innrétting undir og við handlaug, handklæðaofn. 
Þvottahús: Innrétting fyrir þvottavél og þurrkara með skúffum undir og skápum yfir vélum.  Flísar á gólfum.
Geymsla: Er í sameign í kjallara og er 9,2 fm.
Sameign: Í sameign í kjallara er hjóla- og vagnageymsla.
Bílastæði: Bílastæði í lokuðum bílakjallara merk B05.

Helstu eiginleikar:
  • Gólfsíðir gluggar við svalir.
  • Sérmerkt stæði í bílageymslu.
  • Mikið skápapláss.
  • Innréttingar frá Axis.
  • Aukin lofthæð.

Húsið:
Grásteinsmýri 1-6 er glæsilegt og vandað fjölbýlishús byggt af Öxar ehf. 
Húsið er á 3 hæðum auk bílakjallara, alls 102 íbúðir. Húsið er gert staðsteypt og klætt að utan. Gluggar eru álklæddir viðargluggar með tvöföldu gleri. 

*Myndirnar sem birtast á auglýsingu íbúðarinnar eru ekki endilega myndir af íbúðinni sjálfri heldur einungis til þess að gefa sýn á útlit eignanna þegar þær eru tilbúnar.
 
Kaupendur hafa verið upplýstir um að lóðin verður byggingasvæði í einhvern tíma eftir að eignir kunna að vera afhentar og að lokaúttekt kannað tefjast þangað til öll lóðin og mannvirki innan lóðar eru fullkláruð. Röskun getur orðið á stæðum í bílgeymslu og gætu kaupendur þurft að nota annað stæði en það sem þinglýst er á þeirra eign á meðan enn er unnið að því að klára heildareign og lóð. Seljandi mun ábyrgjast lokaúttekt á eigninni en afsal kann að fara fram áður en lokaúttekt á eigninni/heildareigninni fæst.

Nánari upplýsingar veita:
Garðar Hólm löggiltur fasteignasali í síma 899-8811 / gardar@remax.is
Guðlaug Jóna löggiltur fasteignasali í síma 661-2363 / gulla@remax.is
Bjarný Björg löggiltur fasteignasali í síma 694-2526 / bjarny@remax.is


Gjöld sem kaupandi þarf að standa straum af vegna kaupanna:
1.  Stimpilgjald af kaupsamningi 0,8%, ( 0,4% ef um fyrstu kaup er að ræða ) og 1.6% (ef um lögaðila er að ræða) af heildar fasteignamati.
2.  Þinglýsingargjald af kaupsamningi, veðskuldabréfi, mögulegu veðleyfi o.fl. - kr. 2.700 af hverju skjali.
3.  Lántökugjald lánastofnunar -  Nánari upplýsingar á heimasíðum lánastofnana.
4. Umsýslugjald til fasteignasölu kr. 69.900.-
 
 
Fasteignanúmer
2534670
Byggingarefni
Steypt
Númer hæðar
B0
Númer eignar
5
Húsmat
0 kr.
Lóðarmat
0 kr.
Fasteignamat samtals
0 kr.
Brunabótamat
0 kr.
Matsstig
2 - Botnplata

Sambærilegar eignir

Opna eign
Image
Opna eign
Grásteinsmýri 2 - íbúð 306
225 Garðabær
124.9 m2
Fjölbýlishús
413
904 þ.kr./m2
112.900.000 kr.
Opna eign
Image
Opna eign
Grásteinsmýri 2 - íbúð 305
225 Garðabær
120.4 m2
Fjölbýlishús
413
880 þ.kr./m2
106.000.000 kr.
Opna eign
Image
Opna eign
Grásteinsmýri 2 - íbúð 303
225 Garðabær
122.4 m2
Fjölbýlishús
312
922 þ.kr./m2
112.900.000 kr.
Opna eign
Image
Opna eign
Grásteinsmýri 2 - íbúð 212
225 Garðabær
123.9 m2
Fjölbýlishús
43
895 þ.kr./m2
110.900.000 kr.
RE/MAX Ísland logo
Við vinnum fyrir þig
Hafðu samband
skrifstofa@remax.isS: 4777777
Skeifunni 17
kt. 480506-0810
Hlekkir
Samfélagsmiðlar
© Copyright 2026 - RE/MAX Ísland
Knúið af
Fasteignaleitin