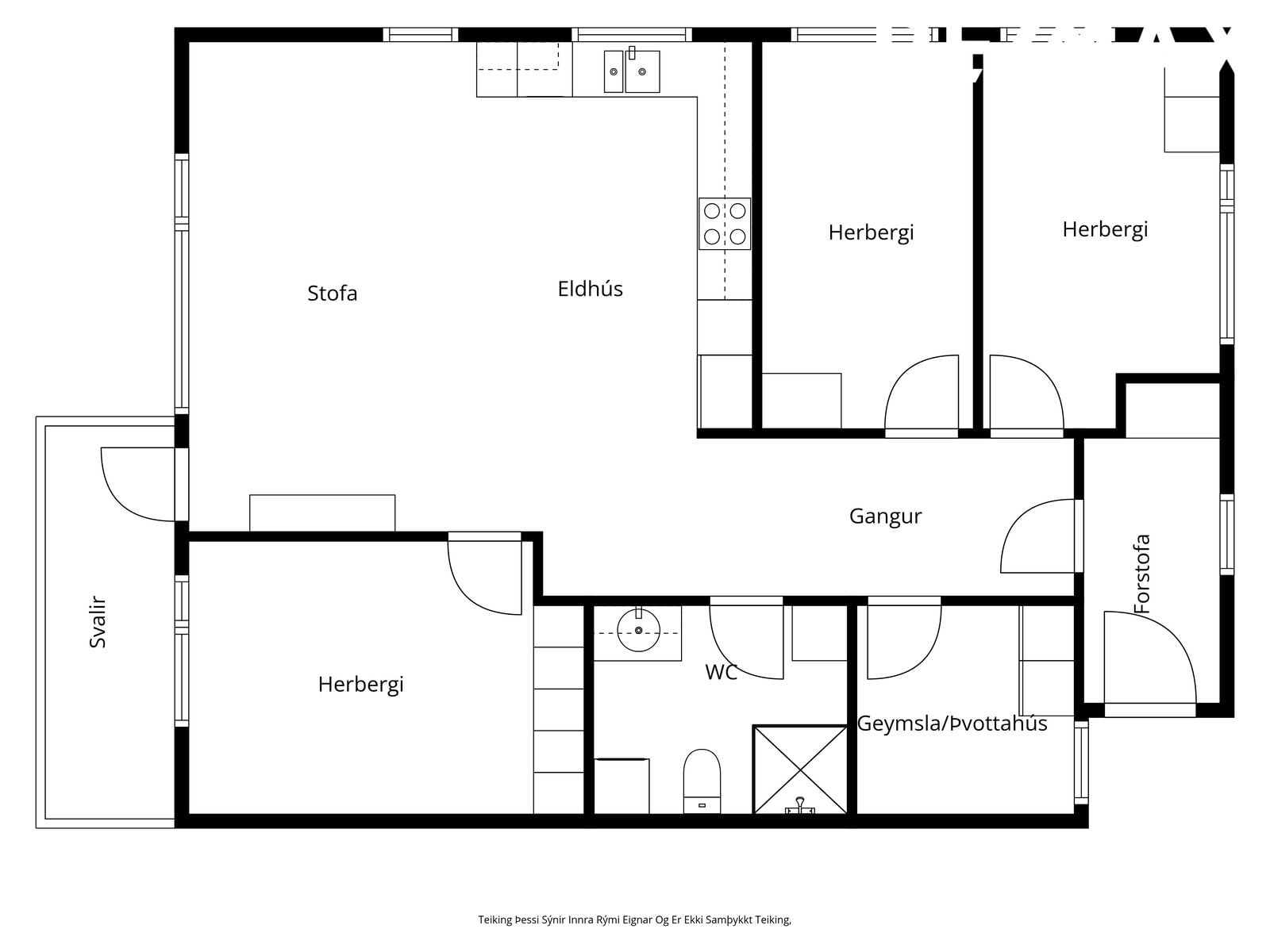
Pétur Ásgeirsson og Ástþór Reynir löggiltir fasteignasalar hjá RE/MAX fasteignasölu kynna í einkasölu: Einkar falleg og björt 99 fm 4-5 herbergja íbúð á 2 hæð með suður svalir við Skyggnisholt 4 í Vogunum. Eignin skiptist í forstofu, þrjú svefnherbergi með skápum, geymslu/herbergi, baðherbergi með sturtu og stæði fyrir þvottavél og þurrkara, eldhús og stofu í björtu alrými m/útg. á stórar svalir.
// Hægt að bæta 4 svefnherberginu við. // Stórar svalir í suður. // Frábær staðsetning. // Stór sameiginlegur garður. // Glæsilegt útsýni // Búið að setja rafhleðslu við bílastæði.
Nánari lýsing eignar: Forstofa: Flísar á gólfi með fataskáp. Stofa/Borðstofa: Rúmgóð og björt. Parket á gólfi. Útgengt út á stórar suðursvalir. Eldhús: Rúmgóð innrétting í L með miklu skápaplássi. Parket á gólfi. Baðherbergi: Flísalagt í hólf og gólf með fallegri innréttingu, sturtuklefi og innréttingu fyrir þvottavél og þurrkara. Hjónaherbergi: Mjög rúmgott með parket á gólfi og fataskáp. Herbergi 1: Parket á gólfi og með fataskáp. Herbergi 2: Parket á gólfi og með fataskáp. Geymsla/Herbergi: Parket á gólfi og með glugga, væri hægt að setja 4 herbergið þar. Hjóla og vagnageymsla í sameign.
Frábær staðsetning í Vogunum. Örstutt í alla helstu þjónustu, leikskóla, skóla og fl.
Nánari upplýsingar gefur Pétur Ásgeirsson löggiltur fasteignasali í síma 893-6513 / petur@remax.is eða Ástþór Reyni í síma 899-6753 eða með tölvupósti á netfangið arg@remax.is
Gjöld sem kaupandi þarf að standa straum af vegna kaupanna: 1. Stimpilgjald af kaupsamningi - 0,8%(einstaklingar) 1.6% (lögaðilar) af heildarfasteignamati. 2. Þinglýsingargjald af kaupsamningi, veðskuldabréfi, mögulegu veðleyfi o.fl. - kr. 2.700 af hverju skjali. 3. Lántökugjald lánastofnunar - almennt 45-75 þús.kr. Nánari upplýsingar á heimasíðu lánastofnana. 4. Umsýslugjald til fasteignasölu kr. 69.900 mvsk.
Pétur Ásgeirsson og Ástþór Reynir löggiltir fasteignasalar hjá RE/MAX fasteignasölu kynna í einkasölu: Einkar falleg og björt 99 fm 4-5 herbergja íbúð á 2 hæð með suður svalir við Skyggnisholt 4 í Vogunum. Eignin skiptist í forstofu, þrjú svefnherbergi með skápum, geymslu/herbergi, baðherbergi með sturtu og stæði fyrir þvottavél og þurrkara, eldhús og stofu í björtu alrými m/útg. á stórar svalir.
// Hægt að bæta 4 svefnherberginu við. // Stórar svalir í suður. // Frábær staðsetning. // Stór sameiginlegur garður. // Glæsilegt útsýni // Búið að setja rafhleðslu við bílastæði.
Nánari lýsing eignar: Forstofa: Flísar á gólfi með fataskáp. Stofa/Borðstofa: Rúmgóð og björt. Parket á gólfi. Útgengt út á stórar suðursvalir. Eldhús: Rúmgóð innrétting í L með miklu skápaplássi. Parket á gólfi. Baðherbergi: Flísalagt í hólf og gólf með fallegri innréttingu, sturtuklefi og innréttingu fyrir þvottavél og þurrkara. Hjónaherbergi: Mjög rúmgott með parket á gólfi og fataskáp. Herbergi 1: Parket á gólfi og með fataskáp. Herbergi 2: Parket á gólfi og með fataskáp. Geymsla/Herbergi: Parket á gólfi og með glugga, væri hægt að setja 4 herbergið þar. Hjóla og vagnageymsla í sameign.
Frábær staðsetning í Vogunum. Örstutt í alla helstu þjónustu, leikskóla, skóla og fl.
Nánari upplýsingar gefur Pétur Ásgeirsson löggiltur fasteignasali í síma 893-6513 / petur@remax.is eða Ástþór Reyni í síma 899-6753 eða með tölvupósti á netfangið arg@remax.is
Gjöld sem kaupandi þarf að standa straum af vegna kaupanna: 1. Stimpilgjald af kaupsamningi - 0,8%(einstaklingar) 1.6% (lögaðilar) af heildarfasteignamati. 2. Þinglýsingargjald af kaupsamningi, veðskuldabréfi, mögulegu veðleyfi o.fl. - kr. 2.700 af hverju skjali. 3. Lántökugjald lánastofnunar - almennt 45-75 þús.kr. Nánari upplýsingar á heimasíðu lánastofnana. 4. Umsýslugjald til fasteignasölu kr. 69.900 mvsk.