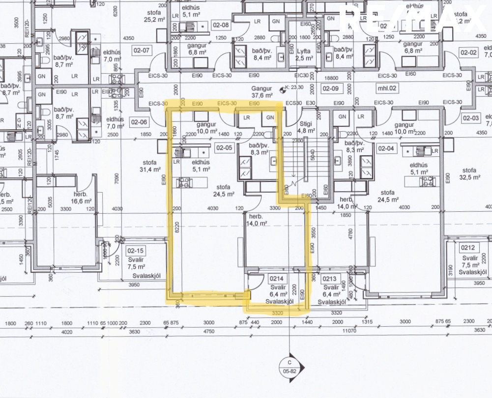
Vernharð Þorleifsson lgf. og Magga Gísladóttir lgf. kynna vel skipulögð og björt 2ja herbergja íbúð á 2. hæð (merkt 02-05) með skjólgóðum svölum í góðu lyftuhúsi á frábærum stað í miðborg Reykjavíkur, nánar tiltekið Stakkholti 2A. Eignin er skráð samtals 82.6 m² hjá Þjóðskrá Íslands og samanstendur af forstofu, eldhúsi, stofu/borðstofu, 1 svefnherbergi, baðherbergi með þvottaaðstöðu, geymslu (11,9 m²) og sér bílastæði í bílakjallara. Íbúðin er búin fínum og stílhreinum innréttingum. Harðparket á alrými og herbergi og flísum á baðherbergi. Svalir út frá stofu. Tengi fyrir þvottavél og þurrkara í innréttingu innan íbúðar og mynddyrasími. Í kjallara er sérgeymsla og hjóla- og vagnageymsla. Húsið er fallegt byggt árið 2014 af ÞG Verk, álklætt og viðhaldslítið með snyrtilega frágenginni lóð. Hellulagðar stéttir með snjóbræðslu fyrir framan hús og leiksvæði fyrir framan. Sameign er afar snyrtileg með flísum í anddyri og teppi á stigagöngum. Um er að ræða eftirsótta staðsetningu miðsvæðis í Reykjavík og í göngufæri við alla verslun og þjónustu og þá menningu sem miðborgin hefur upp á að bjóða. Auk þess er í Skipholti að byggjast upp alls kyns verslun og þjónusta af ýmsu tagi.
Frekari upplýsingar veita Vernharð Þorleifsson löggiltur fasteignasali í síma 699-7372 / venni@remax.is og Magga Gísladóttir löggiltur fasteignasali í síma 698-7494 / magga@remax.is Kíktu í heimsókn til okkar á Facebook eða á Instagram Nánari lýsing Anddyri: Með góðum fataskáp og parketi á gólfi. Gott rými sem getur nýst vel fyrir td. vinnuaðstöðu eða bókahorn. Eldhús: Innrétting með tengi fyrir uppþvottavél. Parket á gólfi. Eldhús myndar opið rými með stofu og borðstofu. Stofa/borðstofa: Rúmgott og bjart rými með parketi á gólfi. Úr stofu er gengið út á skjólgóðar svalir. Svefnherbergi: Góðir fataskápar alveg upp í loft og parketi á gólfi. Baðherbergi/Þvottahús: Flísalagt með fallegri innréttingu, upphengdu salerni, rúmgóðum sturtuklefa og innréttingu fyrir þvottavél og þurrkara. Geymsla: Geymsla er 11,9 m² og er í kjallara hússins. Bílastæði: Sér bílastæði í lokuðum bílakjallara. Svalir: Eru út frá stofu
Húsið lítur mjög vel út. Það er vandað og klætt viðhaldslítilli klæðningu að utan. Stigagangar eru teppalagðir og mjög snyrtilegir. Stakkholt 2a er byggt árið 2014 og er hluti af skemmtilegum íbúðarkjarna í miðborginni með góðu aðgengi að samgöngum, verslunum, veitingastöðum, söfnum og annarri þjónustu og afþreyingu sem miðborgin hefur upp á að bjóða. Íbúðinni fylgir, eins og áður segir, sér bílastæði í lokaðri bílageymslu og geymsla sem er staðsett í kjallara. Sameign og lóð er fullfrágengin með snjóbræddum bílageymslurampi og hellulögðum göngustígum með snjóbræðslukerfi. Mjög skemmtilega hannað leiksvæði er á lóðinni og umhverfi allt til fyrirmyndar. Ilmandi kaffihús er hinum megin við götuna. Allar bókanir fyrir sýningar fara í gegn um Vernharð í 699 7372/venni@remax.is eða Möggu í 698 7494/magga@remax.is
Vernharð Þorleifsson lgf. og Magga Gísladóttir lgf. kynna vel skipulögð og björt 2ja herbergja íbúð á 2. hæð (merkt 02-05) með skjólgóðum svölum í góðu lyftuhúsi á frábærum stað í miðborg Reykjavíkur, nánar tiltekið Stakkholti 2A. Eignin er skráð samtals 82.6 m² hjá Þjóðskrá Íslands og samanstendur af forstofu, eldhúsi, stofu/borðstofu, 1 svefnherbergi, baðherbergi með þvottaaðstöðu, geymslu (11,9 m²) og sér bílastæði í bílakjallara. Íbúðin er búin fínum og stílhreinum innréttingum. Harðparket á alrými og herbergi og flísum á baðherbergi. Svalir út frá stofu. Tengi fyrir þvottavél og þurrkara í innréttingu innan íbúðar og mynddyrasími. Í kjallara er sérgeymsla og hjóla- og vagnageymsla. Húsið er fallegt byggt árið 2014 af ÞG Verk, álklætt og viðhaldslítið með snyrtilega frágenginni lóð. Hellulagðar stéttir með snjóbræðslu fyrir framan hús og leiksvæði fyrir framan. Sameign er afar snyrtileg með flísum í anddyri og teppi á stigagöngum. Um er að ræða eftirsótta staðsetningu miðsvæðis í Reykjavík og í göngufæri við alla verslun og þjónustu og þá menningu sem miðborgin hefur upp á að bjóða. Auk þess er í Skipholti að byggjast upp alls kyns verslun og þjónusta af ýmsu tagi.
Frekari upplýsingar veita Vernharð Þorleifsson löggiltur fasteignasali í síma 699-7372 / venni@remax.is og Magga Gísladóttir löggiltur fasteignasali í síma 698-7494 / magga@remax.is Kíktu í heimsókn til okkar á Facebook eða á Instagram Nánari lýsing Anddyri: Með góðum fataskáp og parketi á gólfi. Gott rými sem getur nýst vel fyrir td. vinnuaðstöðu eða bókahorn. Eldhús: Innrétting með tengi fyrir uppþvottavél. Parket á gólfi. Eldhús myndar opið rými með stofu og borðstofu. Stofa/borðstofa: Rúmgott og bjart rými með parketi á gólfi. Úr stofu er gengið út á skjólgóðar svalir. Svefnherbergi: Góðir fataskápar alveg upp í loft og parketi á gólfi. Baðherbergi/Þvottahús: Flísalagt með fallegri innréttingu, upphengdu salerni, rúmgóðum sturtuklefa og innréttingu fyrir þvottavél og þurrkara. Geymsla: Geymsla er 11,9 m² og er í kjallara hússins. Bílastæði: Sér bílastæði í lokuðum bílakjallara. Svalir: Eru út frá stofu
Húsið lítur mjög vel út. Það er vandað og klætt viðhaldslítilli klæðningu að utan. Stigagangar eru teppalagðir og mjög snyrtilegir. Stakkholt 2a er byggt árið 2014 og er hluti af skemmtilegum íbúðarkjarna í miðborginni með góðu aðgengi að samgöngum, verslunum, veitingastöðum, söfnum og annarri þjónustu og afþreyingu sem miðborgin hefur upp á að bjóða. Íbúðinni fylgir, eins og áður segir, sér bílastæði í lokaðri bílageymslu og geymsla sem er staðsett í kjallara. Sameign og lóð er fullfrágengin með snjóbræddum bílageymslurampi og hellulögðum göngustígum með snjóbræðslukerfi. Mjög skemmtilega hannað leiksvæði er á lóðinni og umhverfi allt til fyrirmyndar. Ilmandi kaffihús er hinum megin við götuna. Allar bókanir fyrir sýningar fara í gegn um Vernharð í 699 7372/venni@remax.is eða Möggu í 698 7494/magga@remax.is